C4XY4519JAV Nieuwbouw villa met uitzicht op de Montgó te koop in Rafalet, Jávea
- €1.078.000
- €1.078.000
Omschrijving
Nieuwbouw villa te koop in Rafalet, Jávea
Deze villa zal klaar zijn tegen maart 2026 (onder voorbehoud) en is gelegen in de urbanisatie Rafalet op 3 km van het strand van Jávea.
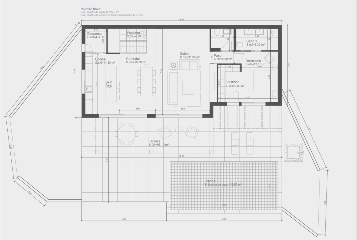
De villa is gelegen op een perceel van 968 m2 en heeft een bebouwde oppervlakte van 370 m2 verdeeld over drie verdiepen. Ter hoogte van de straat zijn er twee parkeerplaatsen en is er toegang tot de bovenverdieping waar zich de inkomhal bevindt en twee tweepersoonsslaapkamers, elk met een en suite badkamer en een ruim privéterras. De benedenverdieping bestaat uit een ruime woon-eetkamer met een open keuken met een kookeiland en een voorraadruimte, een hoofdslaapkamer met een en suite badkamer met dubbele wastafel en een gastentoilet. Zowel vanuit de woonkamer als vanuit de slaapkamer is er toegang tot het terras aan het zwembad. De semi-kelderverdieping bestaat uit een slaapkamer/kantoor met een patio, een gym, een wasruimte, een aparte badkamer, een opslagruimte en een polyvalente ruimte van 45 m2 met een en suite badkamer. Deze ruimte heeft ramen waardoor een vijfde slaapkamer hier mogelijk zou zijn.
Buiten is er een ruim overdekt terras en een overloopzwembad omringd door een zonneterras.
De urbanisatie Rafalet ligt op een steenworp afstand van de golfclub van Jávea en op en op 2 km van het historisch centrum van Jávea. Het strand en de haven zijn op 10 minuten rijden bereikbaar.
Adres
-
Adres: Javea
-
Plaats: Javea
-
Provincie: Alicante
-
Wijk/gebied: Rafalet
-
Land: Spanje
Details
Updated on september 30, 2025 at 12:52 pm-
Referentienummer HZC4XY4519JAV
-
Prijs €1.078.000
-
Woningoppervlakte 370
-
Grondstuk 968
-
Slaapkamers 4
-
Badkamers 5
-
Garages 2
-
Bouwjaar 2025
-
Woningtype Villa
-
Objectstatus Nieuwbouw
























