8248MOR Moderne nieuwbouwvilla met panoramisch zeezicht en groot terras, te koop in Moraira.
- €2.250.000
- €2.250.000
Omschrijving
Deze nieuw gebouwde villa ligt in een rustige en exclusieve woonwijk en combineert luxe met eigentijds design en een perfecte zuidoriëntatie om optimaal te profiteren van het natuurlijke licht en het panoramische uitzicht. Vanuit de bevoorrechte positie biedt het pand een spectaculair 360 graden panoramisch uitzicht, dat zich uitstrekt van Jávea en Teulada tot de prachtige baai van Moraira.
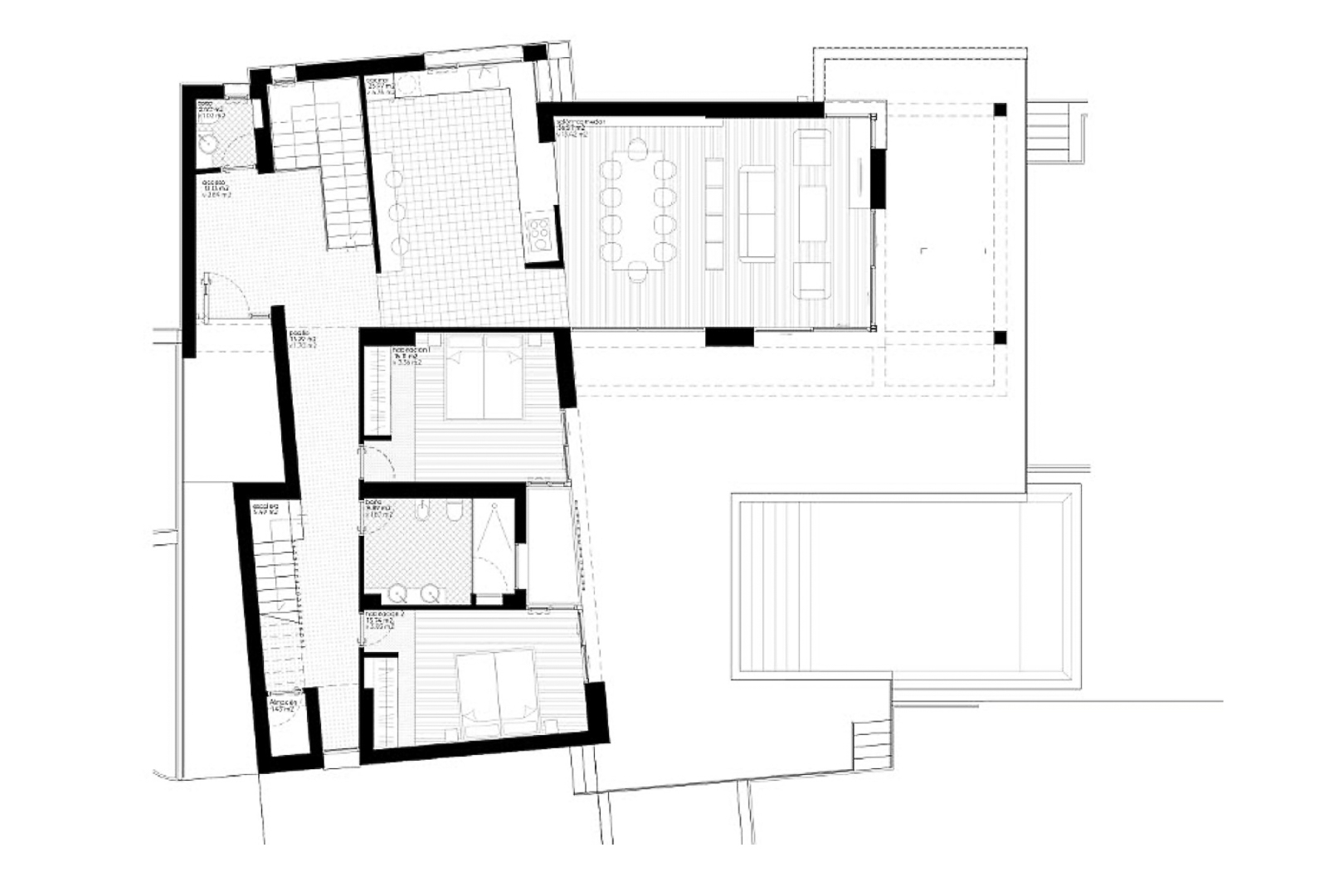
Bij binnenkomst vinden we een ruime en elegante open woonkamer die samengaat met een moderne volledig uitgeruste keuken. Grote ramen laten natuurlijk licht binnen en verbinden het interieur harmonieus met het terras en het privézwembad, waardoor een ideale ruimte ontstaat om het hele jaar door te genieten van het mediterrane klimaat. Op dezelfde verdieping zijn er twee tweepersoonsslaapkamers met inbouwkasten en een familiebadkamer, evenals een gastentoilet.
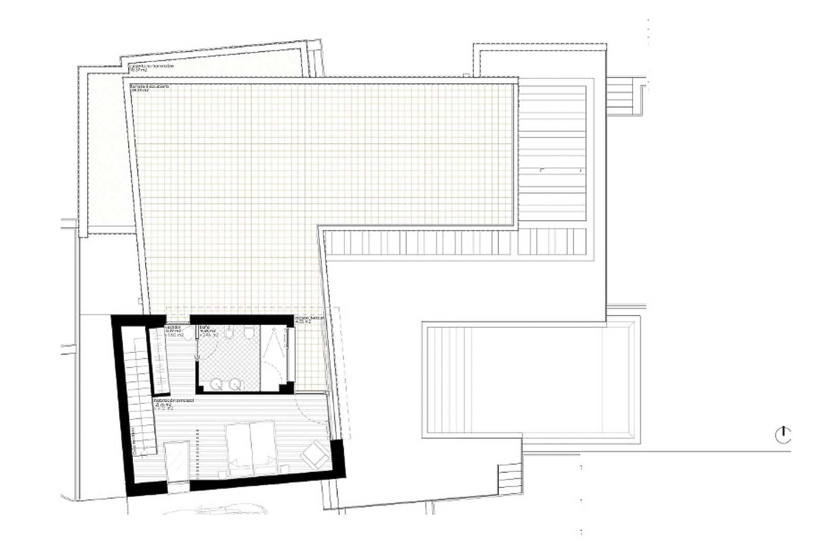
De eerste verdieping is volledig gewijd aan de master suite: een ruime slaapkamer met kleedkamer, en-suite badkamer en toegang tot een privéterras vanwaar je kunt genieten van ongeëvenaard uitzicht op de kustlijn en de natuurlijke omgeving rondom het pand.
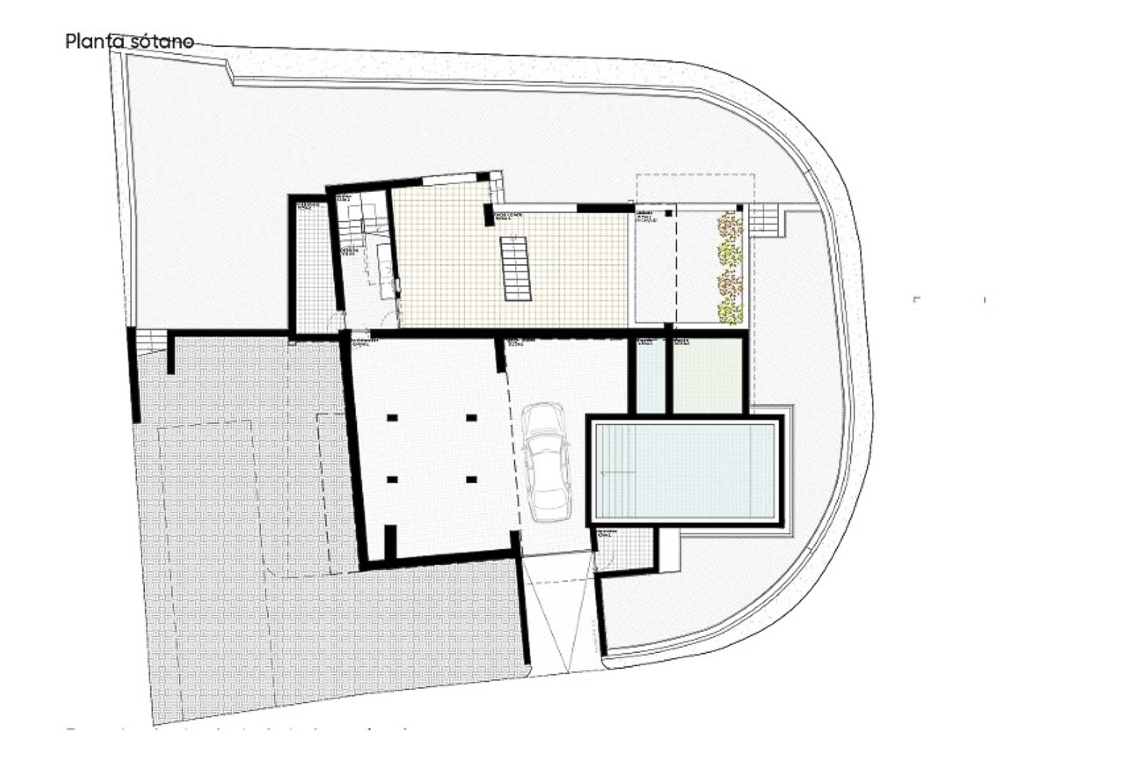
De kelder van de villa biedt eindeloze mogelijkheden dankzij de ruimte en het natuurlijke licht. Deze ruimte kan worden aangepast aan de behoeften van de eigenaar, of het nu een fitnessruimte, bioscoopzaal, wijnkelder of entertainmentruimte is. Daarnaast beschikt het pand over een dubbele garage met directe toegang tot het pand.
Het exterieur is ontworpen met het oog op minimaal onderhoud, met een prachtige mediterrane tuin rondom de villa die perfect past in de omgeving. Het zwembad en het terras nodigen je uit om te ontspannen en te genieten van onvergetelijke momenten in de buitenlucht.
Gebouwd met materialen van hoge kwaliteit en de modernste thermische isolatie (SATE), garandeert deze villa energie-efficiëntie en uitzonderlijk comfort op elk moment van het jaar. De locatie is onverslaanbaar, op loopafstand van supermarkten en het charmante stadje Moraira en Teulada, waar je restaurants, winkels en alle benodigde diensten vindt.
Een exclusieve woning die privacy, design en onvergelijkbaar uitzicht combineert, ideaal voor wie op zoek is naar een luxe huis aan de Costa Blanca.
Wil je een bezichtiging regelen? Aarzel dan niet om contact met ons op te nemen.
Adres
-
Adres: Moraira
-
Plaats: Moraira
-
Provincie: Alicante
-
Wijk/gebied: Benimeit
-
Land: Spanje
Details
Updated on september 30, 2025 at 12:50 pm-
Referentienummer HZ8248MOR
-
Prijs €2.250.000
-
Woningoppervlakte 310
-
Grondstuk 817
-
Slaapkamers 3
-
Badkamers 2
-
Garages 3
-
Bouwjaar 2024
-
Woningtype Villa























