4573BEN Luxe villa in aanbouw te koop in Benissa Costa
- €1.890.000
Omschrijving
Gelegen in de rustige omgeving van San Jaime in Benissa, ligt dit prachtige project: een combinatie van luxe met een adembenemend uitzicht op zee.
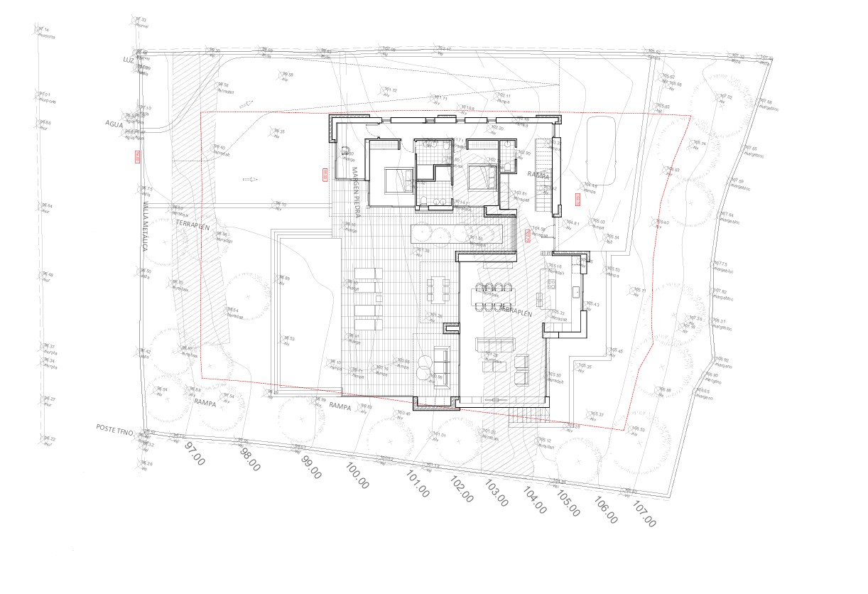
Deze woning is gelegen in een rustige doodlopende straat waardoor bewoners kunnen genieten van hun privacy te midden van een idyllische omgeving. De charismatische omgeving biedt niet alleen een mooi uitzicht, maar ook de nabijheid van essentiële voorzieningen en recreatiemogelijkheden. De gerenommeerde golfbaan San Jaime ligt op een steenworp afstand, perfect voor liefhebbers van deze sport, terwijl de bekende supermarkt Pepe La Sal u voorziet in uw dagelijkse behoeften, zodat het dagelijkse gemak nooit ver weg is.
De villa bestaat uit drie zorgvuldig ontworpen verdiepingen, waarbij elke verdieping functionaliteit en esthetische aantrekkingskracht op harmonieuze wijze combineert:
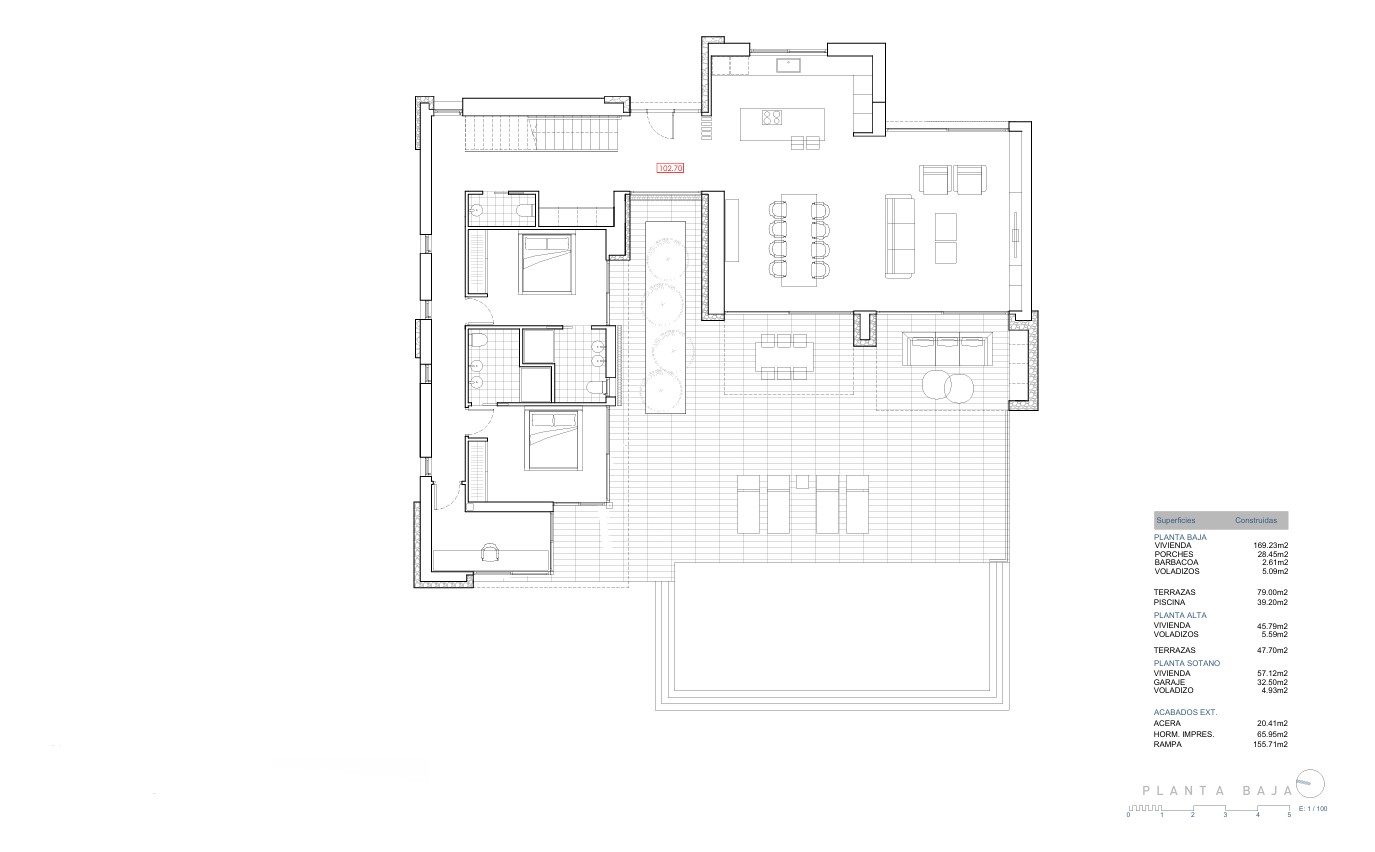
Entreeverdieping: Bij binnenkomst wordt u verwelkomd door een gedeelte met de garage, wasruimte en technische ruimte. Deze ruimte is zorgvuldig ontworpen en zorgt ervoor dat praktische aspecten van het wonen naadloos zijn geïntegreerd zonder afbreuk te doen aan de stijl.
Hoofdverdieping: Als u verder loopt naar de belangrijkste leefruimte, wordt u omringd door elegantie en comfort. De open woonkamer, eetkamer en keuken stralen een gastvrije sfeer uit, ideaal voor familiebijeenkomsten of het ontvangen van gasten. Op deze verdieping bevinden zich twee royale slaapkamers met eigen badkamer.
Buitenruimtes: Buiten nodigen het terras en het zwembad uit tot ontspanning en recreatie in uw eigen buitenoase. De buitenruimtes zijn zo ontworpen dat ze een naadloze integratie tussen binnen- en buitenleven creëren, met ruimtes om te dineren, te ontspannen en te genieten van het zwoele Spaanse klimaat.
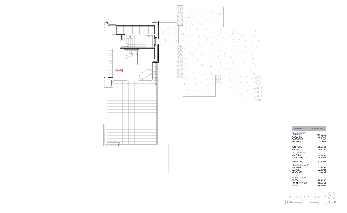
Bovenverdieping: De bovenste verdieping is gereserveerd voor de sublieme hoofdslaapkamer, met een eigen badkamer en toegang tot een ruim buitenterras. Deze privé-oase nodigt u uit om te genieten van talrijke zonsop-en ondergangen, en biedt u dagelijks een spektakel van de schoonheid van de natuur vanuit het comfort van uw eigen huis.
Deze unieke woning combineert een moderne architecturale filosofie met de tijdloze charme van de omgeving en biedt een ongeëvenaarde woonervaring in San Jaime, Benissa. Deze woning biedt rust, luxe en gemak en is niet zomaar een huis, maar een thuis waar elk detail een statement is van kwaliteit en verfijning.
Adres
-
Adres: Benissa
-
Plaats: Benissa
-
Provincie: Alicante
-
Land: Spanje
Details
Updated on september 26, 2025 at 9:13 am-
Referentienummer HZ4573BEN
-
Prijs €1.890.000
-
Grondstuk 1021
-
Slaapkamers 3
-
Badkamers 4
-
Bouwjaar 2025
-
Woningtype Villa
-
Objectstatus Nieuwbouw















