4559JAV Multifunctioneel commercieel pand te koop in Jávea
- €795.000
Omschrijving
Multifunctioneel commercieel pand te koop op toplocatie in Jávea,
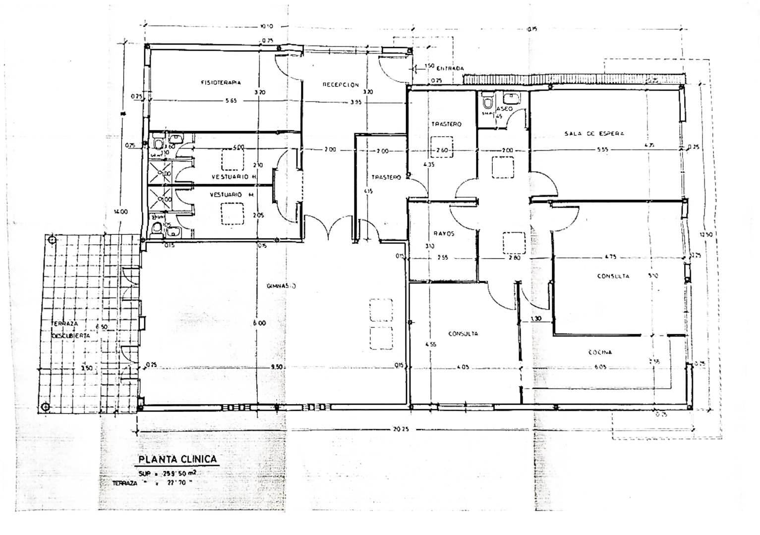
Dit veelzijdige commerciële pand van maar liefst 268 m2 biedt tal van mogelijkheden voor uiteenlopende doeleinden. Momenteel is het pand ingericht als een tandartsenpraktijk en revalidatiecentrum, maar dankzij een ijzeren structuur bestaat de mogelijkheid om het gebouw een volledig nieuwe indeling te geven mits behoud van enkele steunpilaren.
Het pand is uitstekend geschikt voor commerciële, educatieve, culturele, gezondheids- en zorgactiviteiten, maar ook andere bedrijfsvormen zijn mogelijk, mits in lijn met de geldende wetgeving.
De huidige indeling omvat een receptie, een wachtruimte, drie behandelkamers, een röntgenkamer, een toilet, twee kleedkamers met elk een volledige badkamer en twee opslagruimtes. Het absolute hart van het pand is de zeer grote rehabilitatieruimte. Dankzij het hoge plafond en de vele ramen ontstaat hier een uitzonderlijk gevoel van ruimte en licht. Deze ruimte leent zich perfect om om te vormen tot een yoga studio, danszaal, fitness ruimte, etc.
Door de ruime opzet en de mogelijkheid tot herindeling biedt dit pand ongekende kansen voor ondernemers die op zoek zijn naar een multifunctioneel gebouw op een strategische locatie. Daarnaast beschikt het pand over meerdere privéparkeerplaatsen en is het gelegen aan één van de hoofdtoegangswegen tot Jávea, wat zorgt voor uitstekende zichtbaarheid en gemakkelijke bereikbaarheid. Bovendien bent u in slechts 2 minuten in het centrum en op 5 minuten aan de kust.
Het geheel staat op een ruim perceel van 1.495 m2, met een ruime tuin die extra mogelijkheden biedt. Hierdoor bestaat zelfs de optie om het pand om te bouwen tot een ruime villa met een mooie buitenruimte.
Contacteer ons voor meer informatie of een bezoek!
Adres
-
Adres: Javea
-
Plaats: Javea
-
Provincie: Alicante
-
Wijk/gebied: Montgó-Barranqueres
-
Land: Spanje
Details
Updated on september 30, 2025 at 12:55 pm-
Referentienummer HZ4559JAV
-
Prijs €795.000
-
Woningoppervlakte 321
-
Grondstuk 1495
-
Badkamers 2
-
Garages 9
-
Bouwjaar 2007
-
Woningtype Commercieel
-
Objectstatus Resale









































