4544JAV Grondstuk van 2600 m2 met woning te koop op wandelafstand van het zandstrand in Jávea
- €850.000
- €850.000
Omschrijving
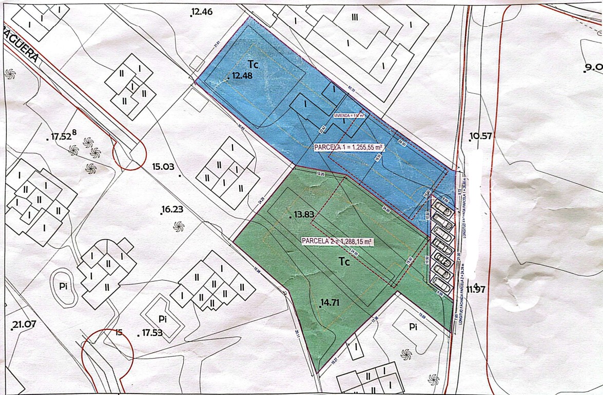
Interessant voor investeerders – Perceel van 2.600 m2 met woning en opsplitsingsmogelijkheid in twee bouwgronden
Dit perceel bevindt zich op zeer korte afstand van het zandstrand van Jávea en biedt een uitstekende investeringskans. Het terrein kan perfect worden opgesplitst in twee afzonderlijke bouwpercelen van elk ongeveer 1.300 m2, geschikt voor het realiseren van twee luxe villa’s.
Momenteel staat er op het perceel een gelijkvloerse villa met een bebouwde oppervlakte van 152 m². De woning beschikt over een woonkamer met open keuken, een tweede woon-eetkamer met gesloten keuken, drie slaapkamers, twee badkamers en een patio met een berging.
Dit perceel bevindt zich op wandelafstand van het zandstrand van Jávea en geniet een uitstekende ligging nabij alle voorzieningen. Supermarkten, restaurants, dokterspraktijken, sportfaciliteiten en andere dagelijkse benodigdheden zijn allemaal te voet bereikbaar. Deze locatie combineert privacy met het comfort van een centrale ligging.
Adres
-
Adres: Javea
-
Plaats: Javea
-
Provincie: Alicante
-
Wijk/gebied: Adsubia
-
Land: Spanje
Details
Updated on september 30, 2025 at 12:53 pm-
Referentienummer HZ4544JAV
-
Prijs €850.000
-
Woningoppervlakte 152
-
Grondstuk 2600
-
Slaapkamers 3
-
Badkamers 2
-
Garages 10
-
Bouwjaar 1983
-
Woningtype Grondstuk
-
Objectstatus Resale



































