4538ALC Energiezuinige nieuwbouw villa te koop in Alcalalí
- €620.000
Omschrijving
Hoogwaardige energiezuinige woningen in Alcalalí met prachtig vallei-uitzicht:
Ontdek een unieke woonkans in het hart van de Jalon-vallei: Residencial VALL DE POP, een exclusief project bestaande uit 35 percelen met moderne, vrijstaande eensgezinswoningen. Gelegen op een verhoogde locatie in Alcalalí, bieden deze villa’s een adembenemend panoramisch uitzicht over de vallei. Deze villa’s onderscheiden zich door hun unieke bouwwijze met een geavanceerd 3D-microbetonpaneelsysteem, waarmee een uitzonderlijk hoog niveau van thermische isolatie, luchtdichtheid en structurele sterkte wordt bereikt — en dat alles binnen de gebruikelijke prijsklasse. Dankzij meerdere isolatieplaten zonder koudebruggen, luchtdichte aansluitingen en hernieuwbare energieopwekking via aerothermie, zijn deze woningen ontworpen om te voldoen aan de strenge eisen van een Passivhaus-certificering. Hoewel de officiële certificering nog afhankelijk is van de laatste test, is nu al duidelijk dat het energieverbruik minimaal zal zijn en de woningen zullen behoren tot de meest energie-efficiënte op de markt.
Kies uit drie zorgvuldig ontworpen woningmodellen met privézwembad, elk met zuidelijke oriëntatie voor optimale lichtinval en comfort het hele jaar door.
Model A – Comfort en functionaliteit
Een doordacht ontworpen woning met 3 comfortabele slaapkamers en 2 moderne badkamers. Ideaal voor gezinnen of als praktische vakantiewoning. Alles wat je nodig hebt, in een slimme en efficiënte indeling.
Model B – Meer ruimte, meer buitenleven
Met dezelfde indeling als Model A, maar met ruimere kamers en grotere terrassen. Geniet van extra wooncomfort en meer leefruimte, zowel binnen als buiten.
Model C – Exclusieve luxe en een uniek design op een groot grondstuk
Een elegante villa met hoogwaardige afwerkingen, doordachte details en een uniek architectonisch ontwerp. Voor wie op zoek is naar een woning die comfort, stijl en exclusiviteit uitstraalt. Wat Model C extra bijzonder maakt, is het dubbel zo grote perceel ten opzichte van Model A en B. Daarnaast zijn er meer dan 30 grondstukken beschikbaar, zodat je het perceel kunt kiezen dat het beste bij jouw wensen past.
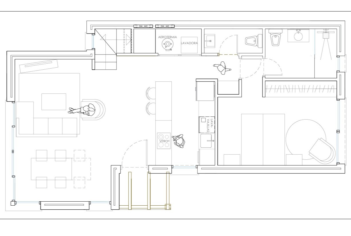
De renders en plannen illustreren model B, een ruime, praktische 3 slaapkamer villa, verdeeld over twee verdiepen. De benedenverdieping bestaat uit een woon-eetkamer met een volledig uitgeruste open keuken met BOSCH inbouwapparatuur, granieten werkblad en een kookeiland met een inductieplaat. Op deze verdieping bevindt zich ook een ruime slaapkamer met een en suite badkamer met kwalitatief badkamermeubilair van het merk Porcelanosa. Voor extra comfort is er ook een gastentoilet.
Op de bovenverdieping bevinden zich twee tweepersoonsslaapkamers, elk met een prive-terras en met een gedeelde badkamer.
Een tuin is optioneel en niet inbegrepen in de standaardprijs – dit biedt flexibiliteit voor wie zelf de buitenruimte wil vormgeven. Wel beschikt elke villa over meerdere terassen, pergola’s en een verharde parkeerplaats. Dankzij de strategische ligging geniet je van privacy, rust en natuur, terwijl het gezellige, historische centrum van Alcalalí en andere voorzieningen al wandelend bereikbaar zijn.
Een unieke kans om uw eigen moderne nieuwbouw villa in de Jalon vallei te bezitten!
Meer informatie op aanvraag.
Adres
-
Adres: Alcalali
-
Plaats: Alcalali
-
Provincie: Alicante
-
Wijk/gebied: La Solana Gardens
-
Land: Spanje
Details
Updated on september 30, 2025 at 12:53 pm-
Referentienummer HZ4538ALC
-
Prijs €620.000
-
Woningoppervlakte 218
-
Woningtype Villa
-
Objectstatus Nieuwbouw


































