4517BEN Luxueuze nieuwbouw villa met zeezicht te koop in Raco de Galeno, Benissa
- €2.995.000
- €2.995.000
Omschrijving
Deze nieuwbouw villa zal gebouwd worden op een ruim perceel van 1500 m2 in de luxueuze urbanisatie Raco de Galeno op 2 km van de prachtige kust van Benissa.
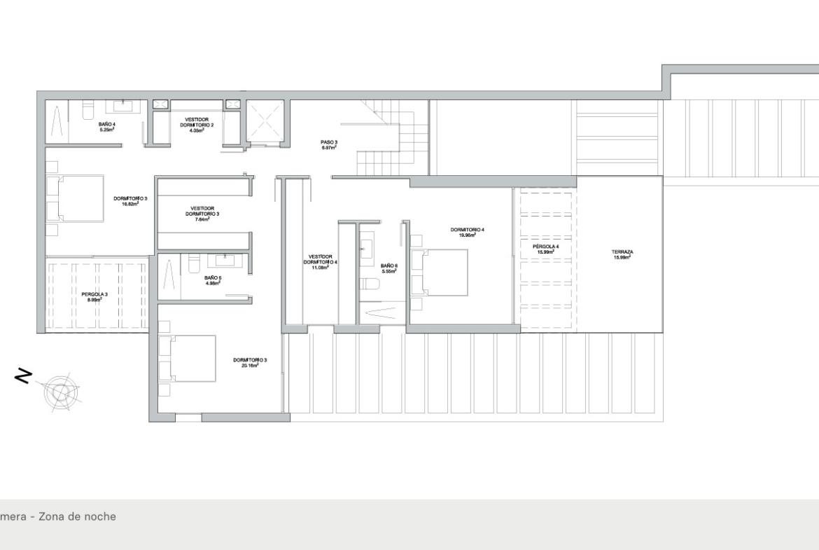
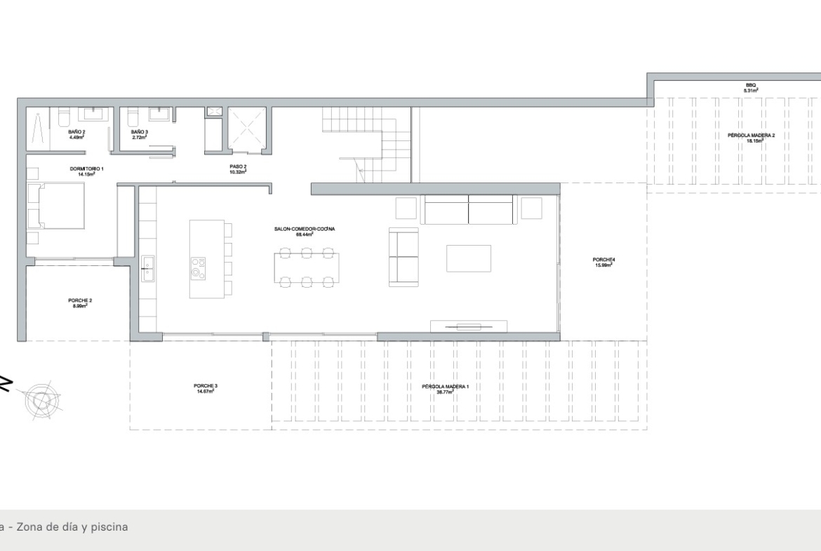
De villa heeft een totale bebouwde oppervlakte van 459 m2 verdeeld over twee verdiepen + een kelderverdieping met een dubbele garage. De benedenverdieping bestaat uit een ruime woon-eetkamer met een moderne, open keuken, een slaapkamer met een en suite badkamer en een privéterras en een gastentoilet. Op de bovenverdieping bevinden zich nog drie luxueuze slaapkamers, elk met een en suite badkamer en een dressing. Eén slaapkamer heeft via schuiframen toegang tot een privéterrás en de andere twee slaapkamers delen een zeer ruim terras. De kelderverdieping bestaat uit een garage met parkeerruimte voor twee wagens, een inkomhal en een gastentoilet. Buiten is er een zwembad omringd door meerdere terassen zowel overdekt als onoverdekt. De villa heeft een ruime oprijlaan met toegang tot de garage. Er wordt een pre-installatie voor zwembadverwarming geïnstalleerd en een pre-installatie voor een alarmsysteem. Het klimaatregelingssysteem dat wordt geïnstalleerd is het AEROTHERMIA-systeem voor warmte en koeling en vloerverwarming door het hele huis met AIRZONE-systeem.
Het project beschikt al over een licentie en kan op een jaar gebouwd worden.
Adres
-
Adres: Benissa
-
Plaats: Benissa
-
Provincie: Alicante
-
Wijk/gebied: Raco de Galeno
-
Land: Spanje
Details
Updated on september 30, 2025 at 12:51 pm-
Referentienummer HZ4517BEN
-
Prijs €2.995.000
-
Woningoppervlakte 458
-
Grondstuk 1500
-
Slaapkamers 4
-
Badkamers 4
-
Woningtype Villa
-
Objectstatus Nieuwbouw










