4341BELL Moderne villa in aanbouw te koop in Cumbre del Sol
- €1.175.000
Omschrijving
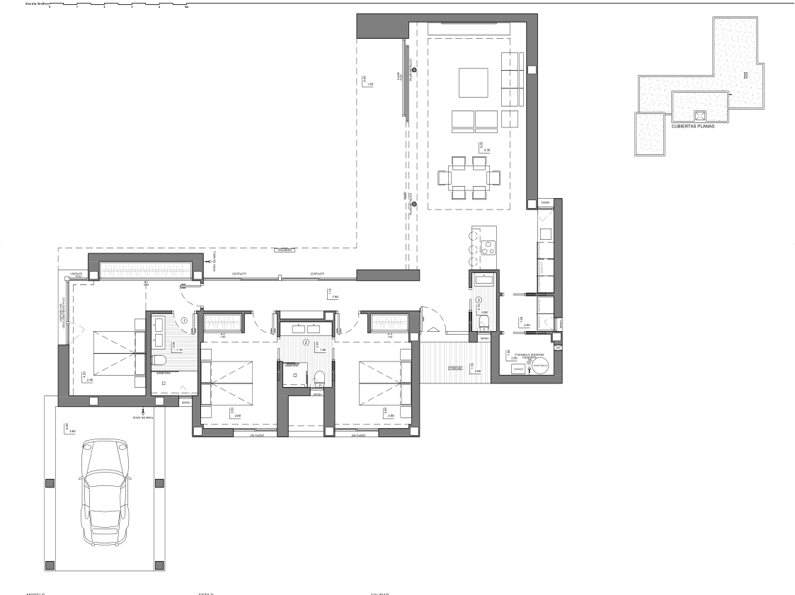
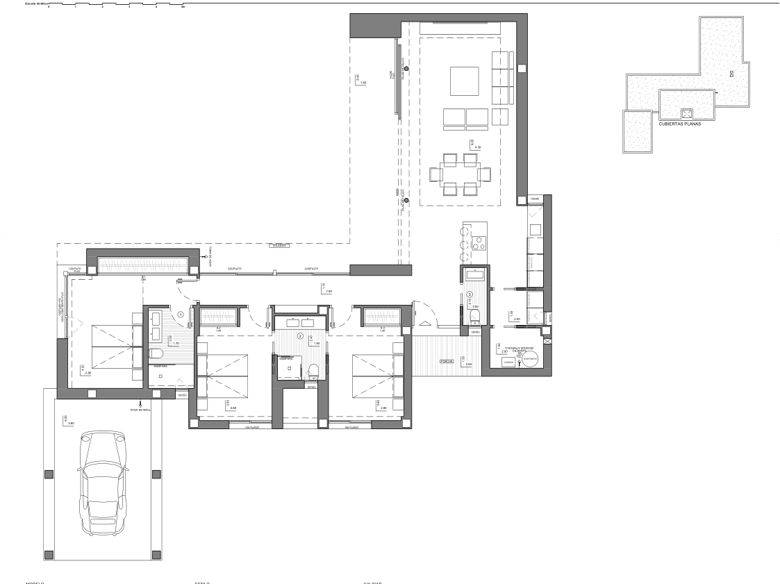
Deze prachtige, unieke villa is gelegen in Cumbre del Sol en biedt prachtig zicht over de Middellandse azuurblauwe zee en de kliffen van Benitachell. Idyllische strandjes liggen op minder dan een km, het toeristische vissersdorpje Moraira op slechts 10 minuten rijden en het zandstrand van Jávea op net geen 20 minuten rijden. De villa is gericht op het zuidwesten en bestaat uit één verdieping wat voor uiterst comfort zorgt. Er is een ruime woon-eetkamer, een open keuken met aangrenzend een wasruimte, een dubbele slaapkamer met een en suite badkamer en twee dubbele slaapkamers die een badkamer delen. Vanuit de woonkamer is er via grote schuiframen een directe toegang tot het terras aan het overloopzwembad. De villa is momenteel in aanbouw.
Adres
-
Adres: Benitachell
-
Plaats: Benitachell
-
Provincie: Alicante
-
Wijk/gebied: Cumbre del Sol
-
Land: Spanje
Details
Updated on september 30, 2025 at 12:43 pm-
Referentienummer HZ4341BELL
-
Prijs €1.175.000
-
Woningoppervlakte 193
-
Grondstuk 956
-
Slaapkamers 3
-
Badkamers 3
-
Garage 1
-
Bouwjaar 2024
-
Woningtype Villa
-
Objectstatus Nieuwbouw



























