4309BEN Luxueuze nieuwbouw villa met panoramisch uitzicht over de zee te koop in Benissa
- €2.200.000
- €2.200.000
Omschrijving
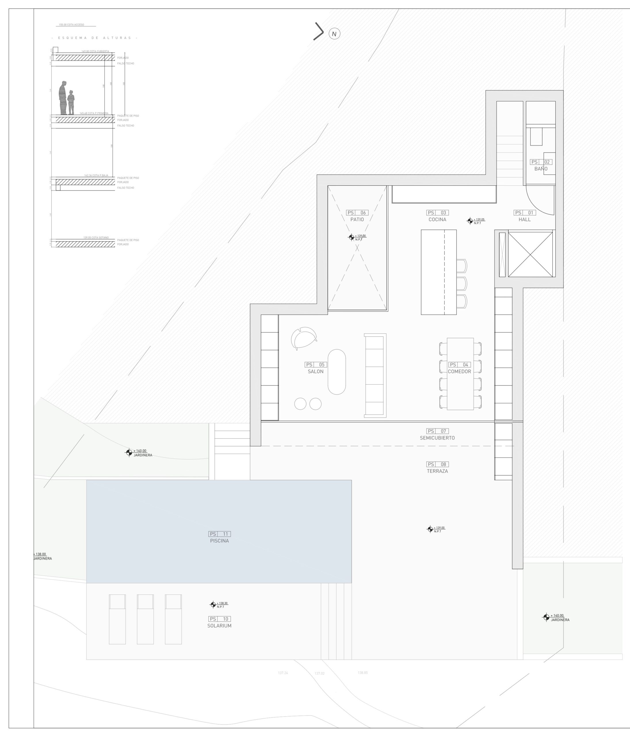
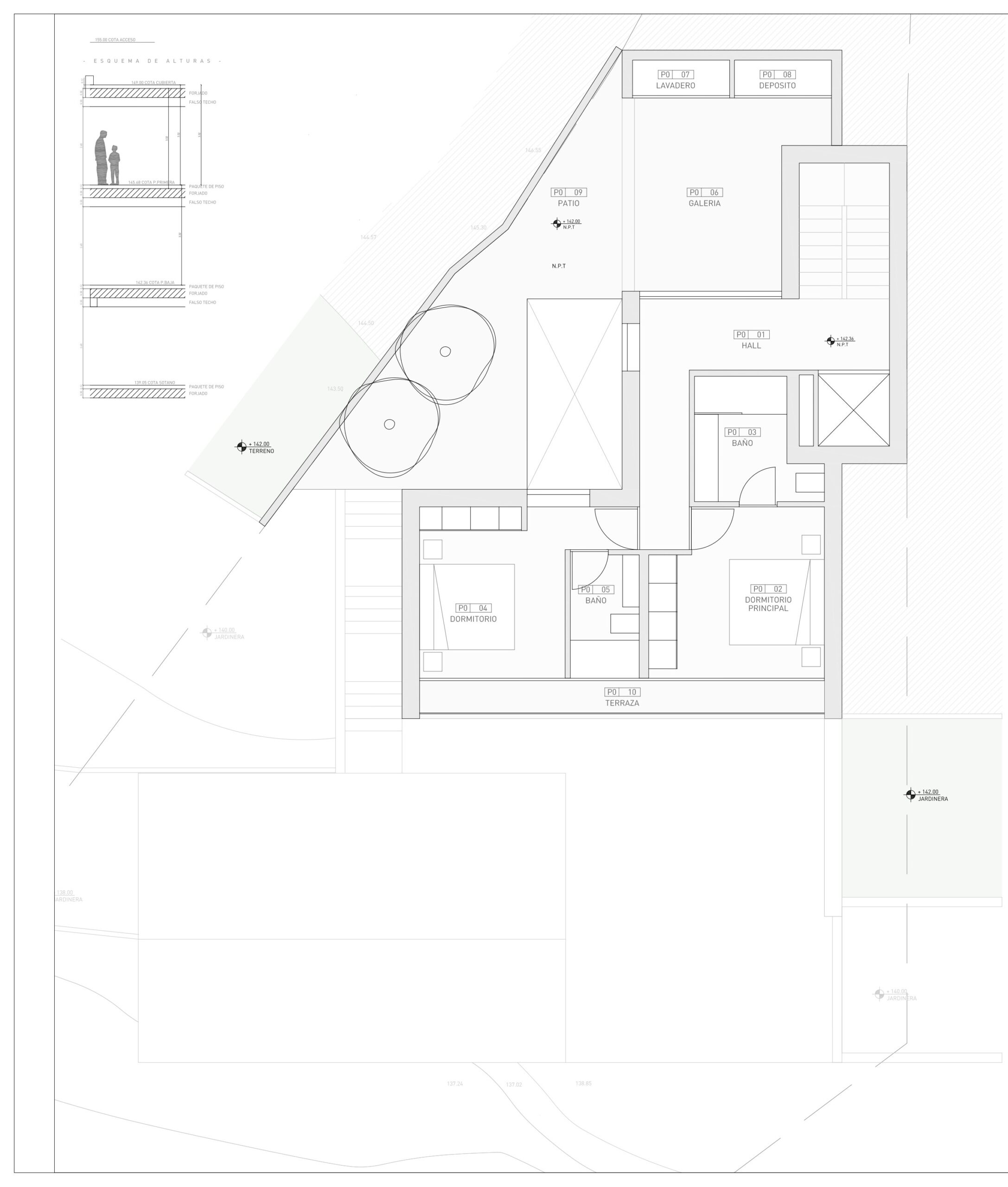
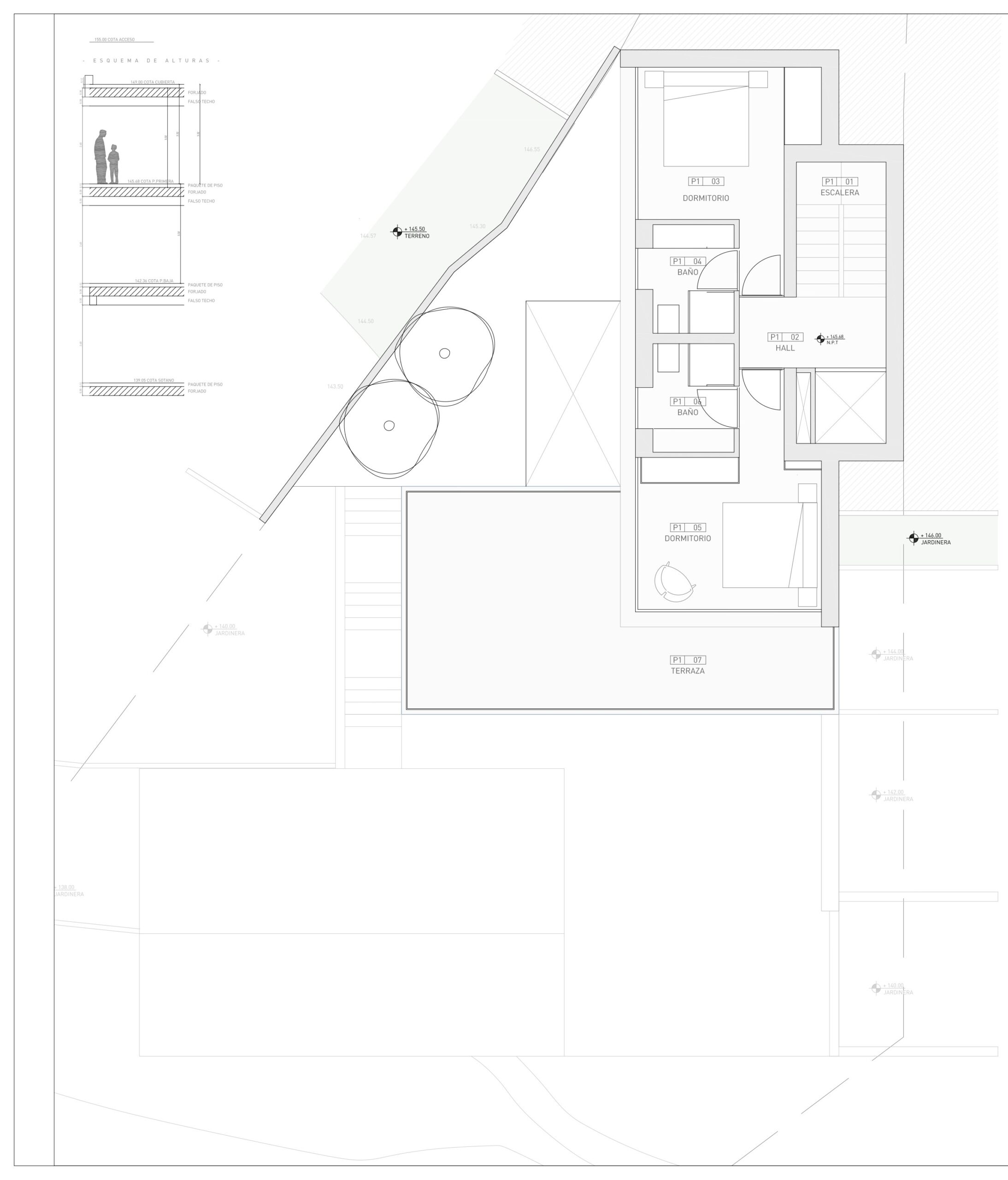
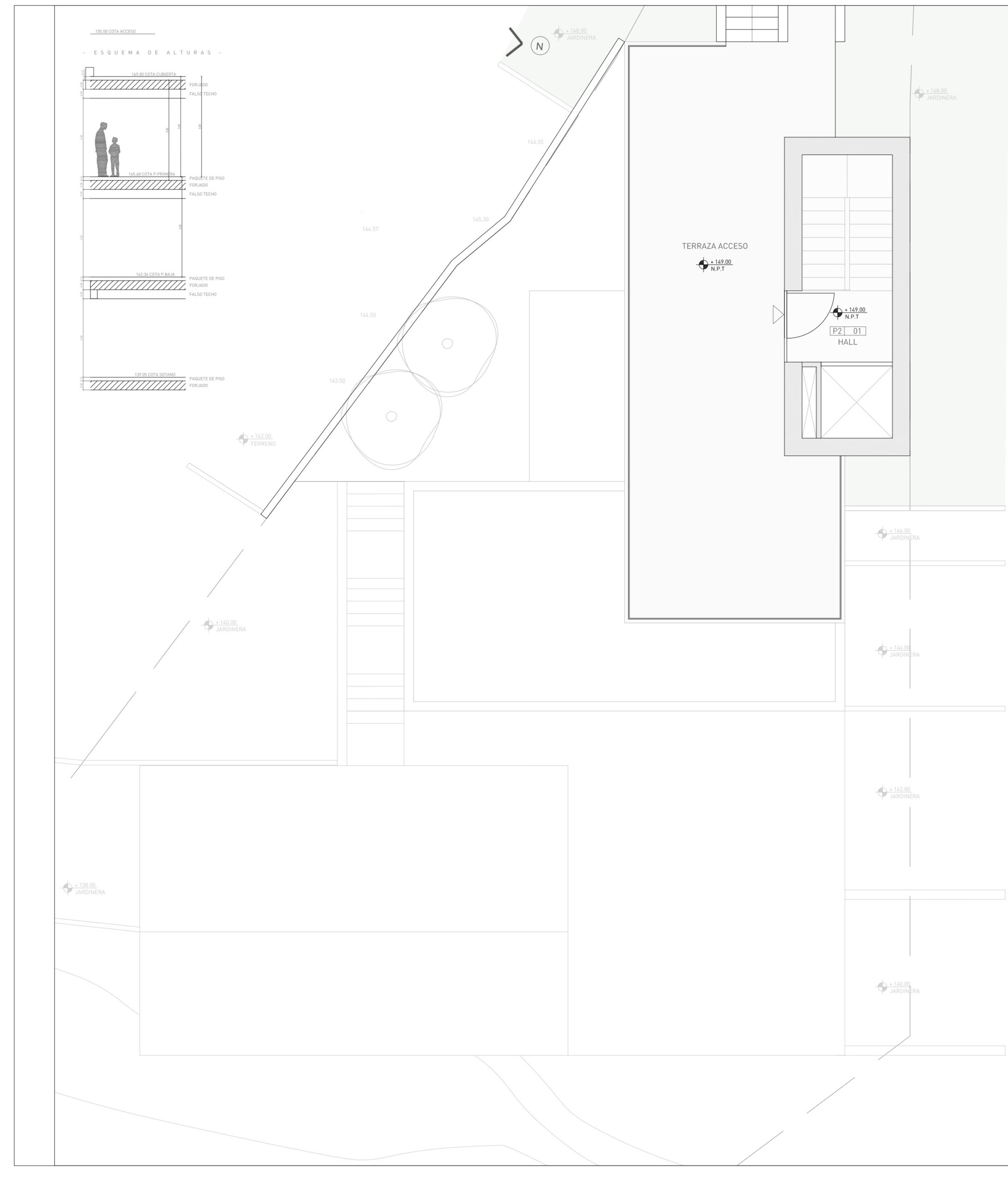
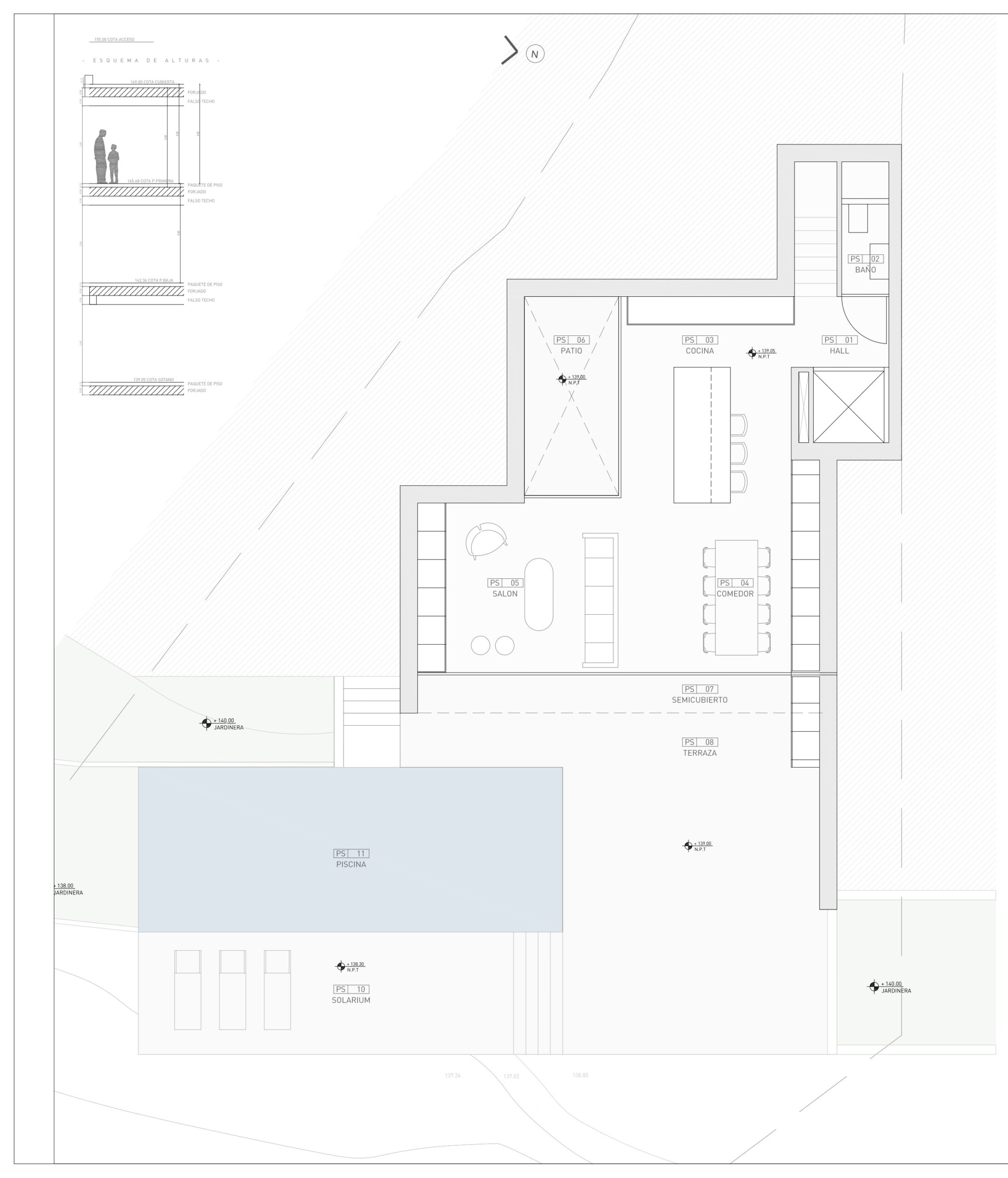
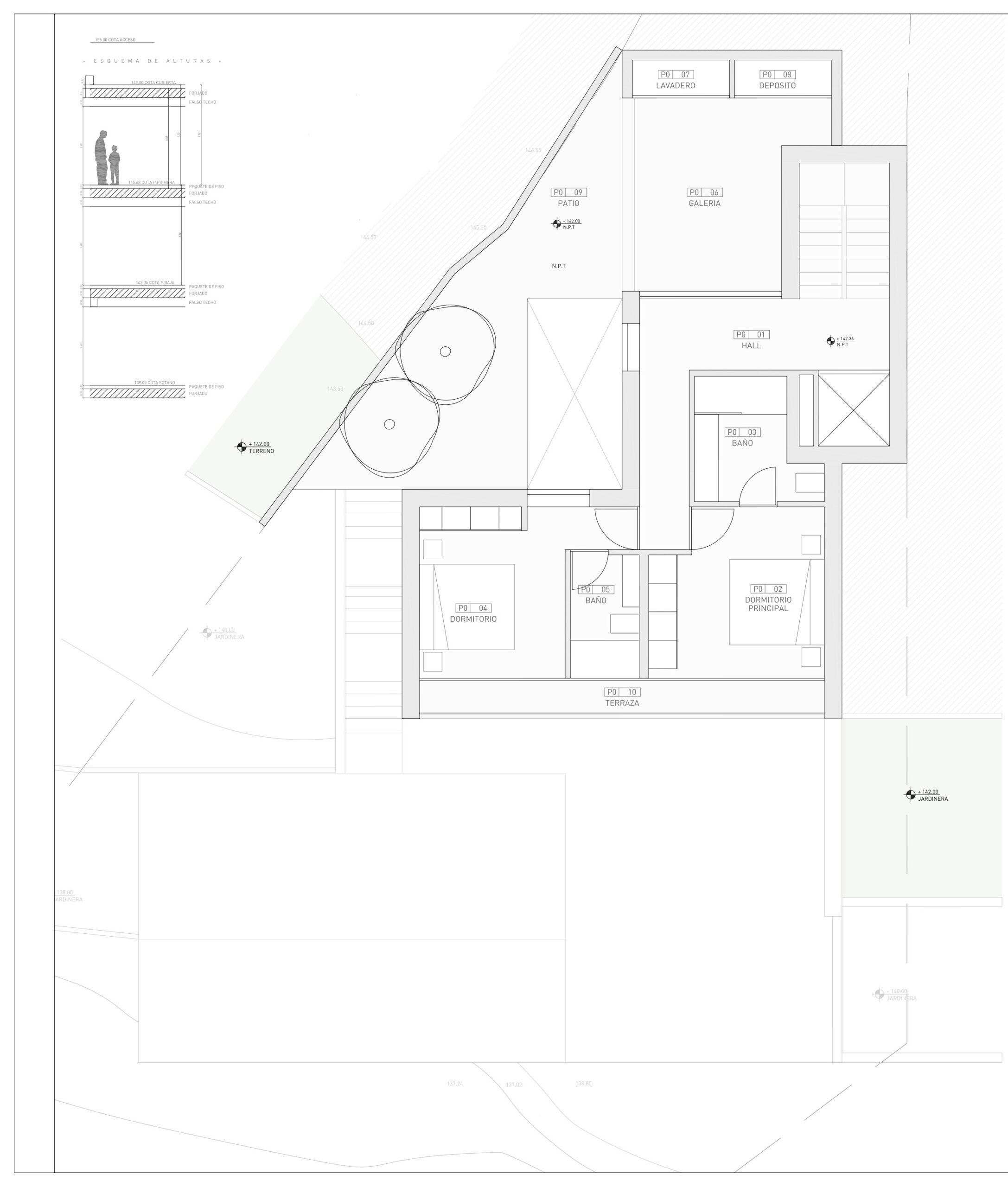
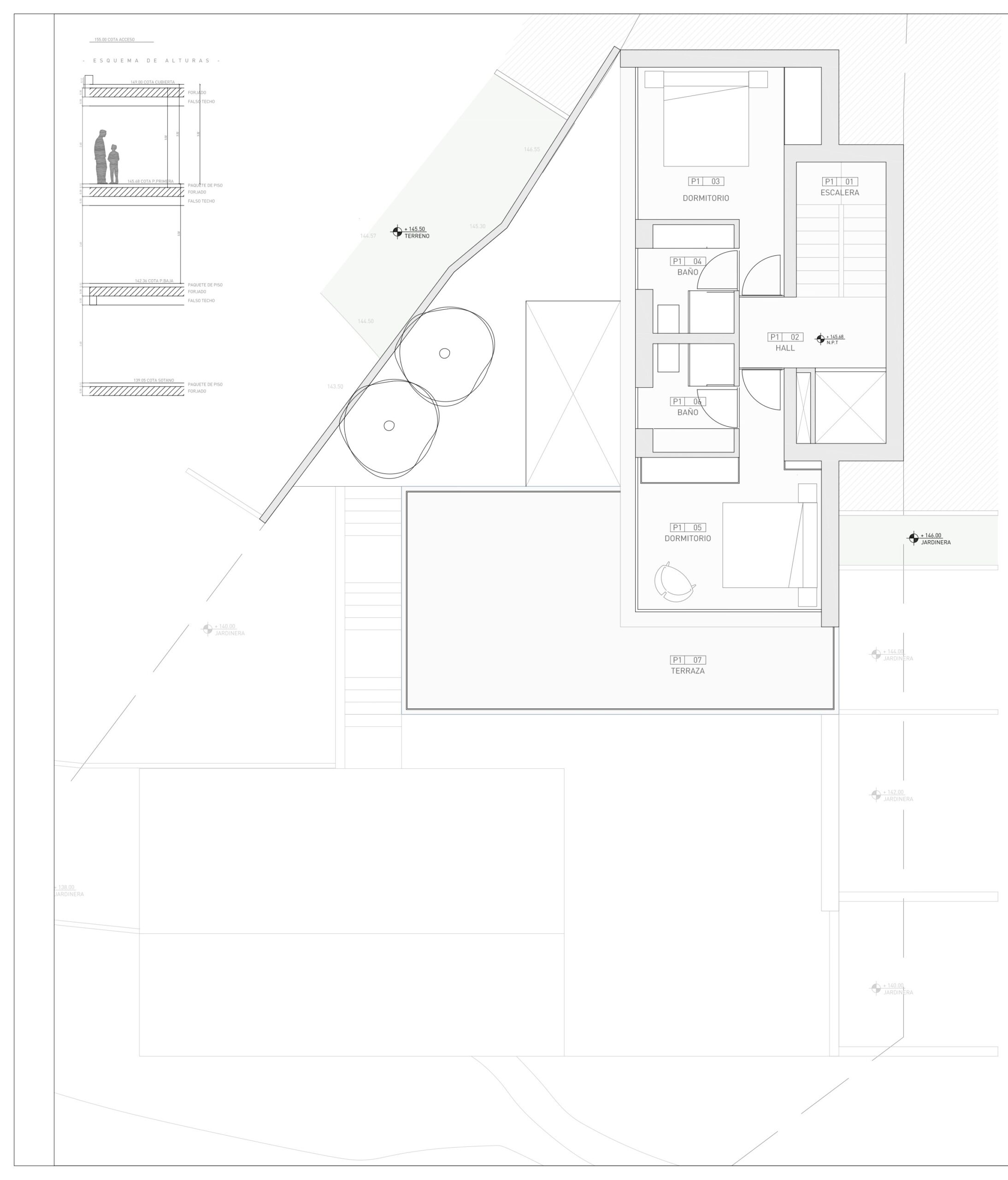
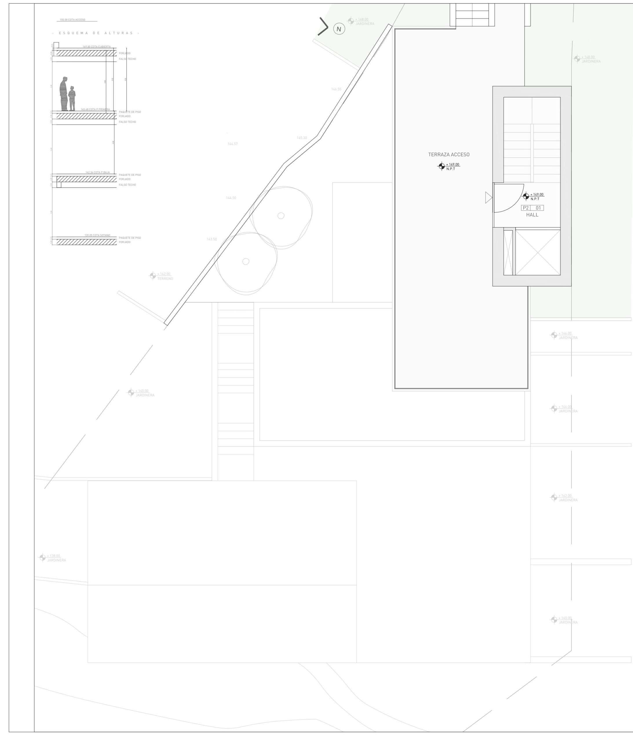
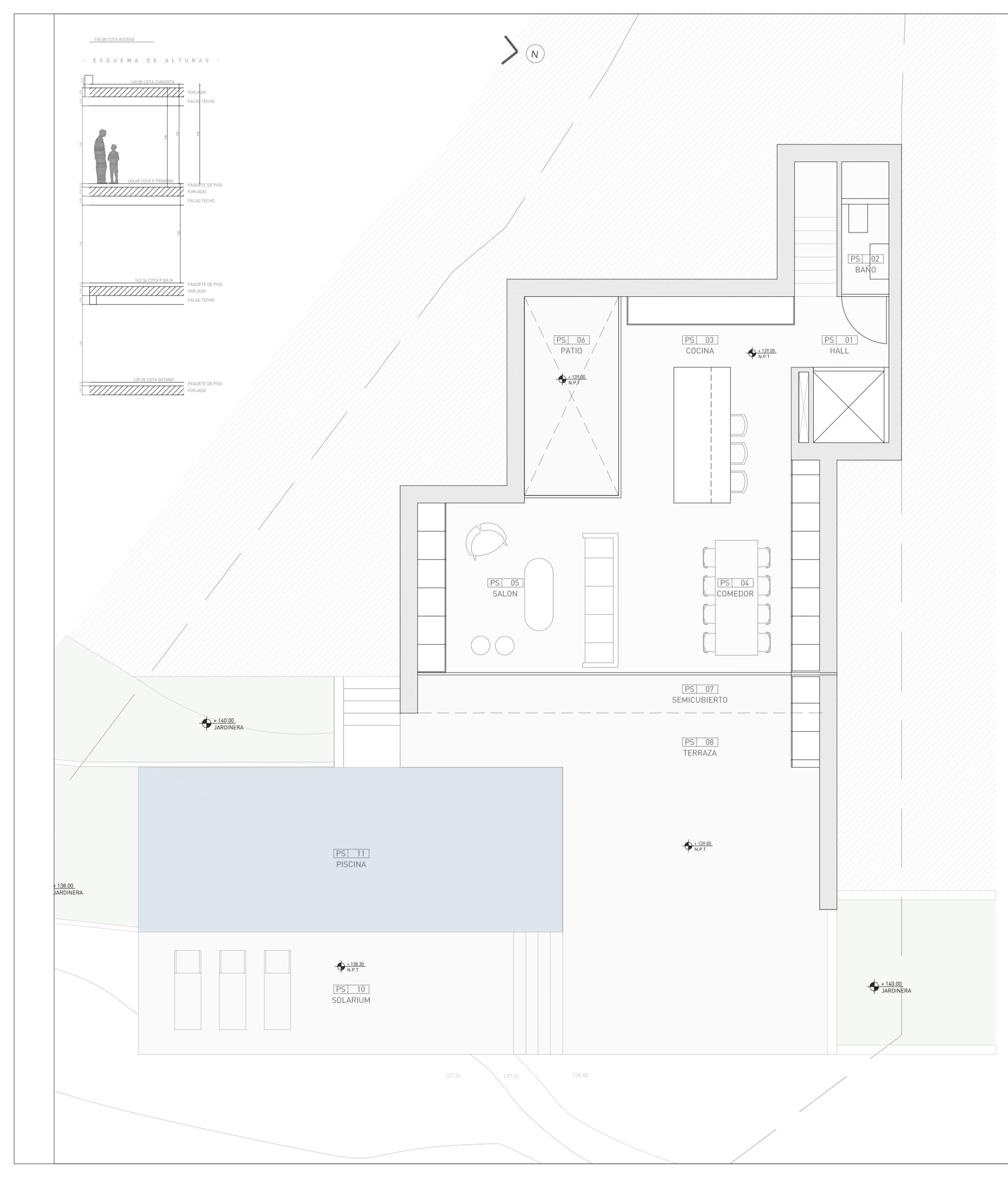
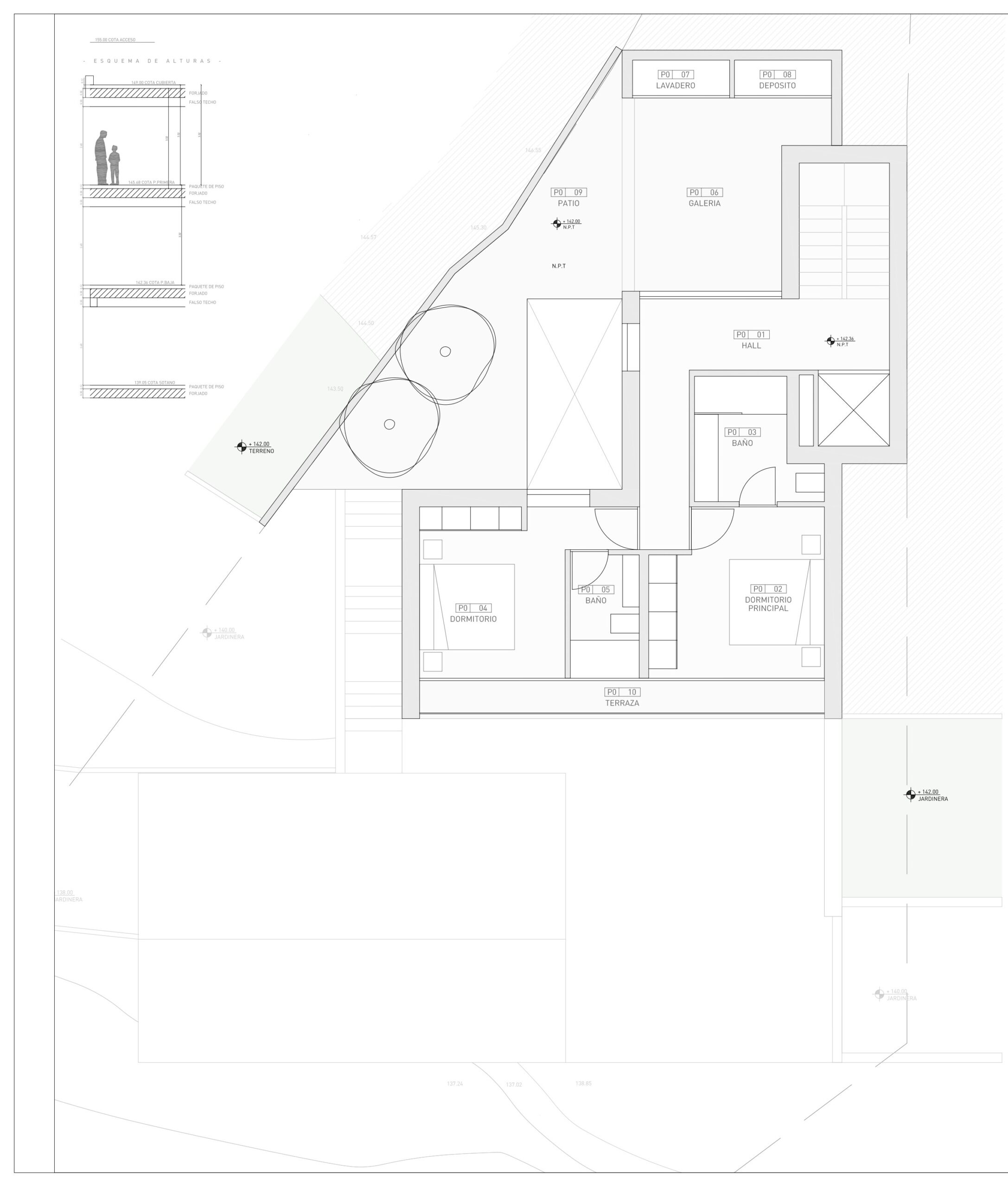
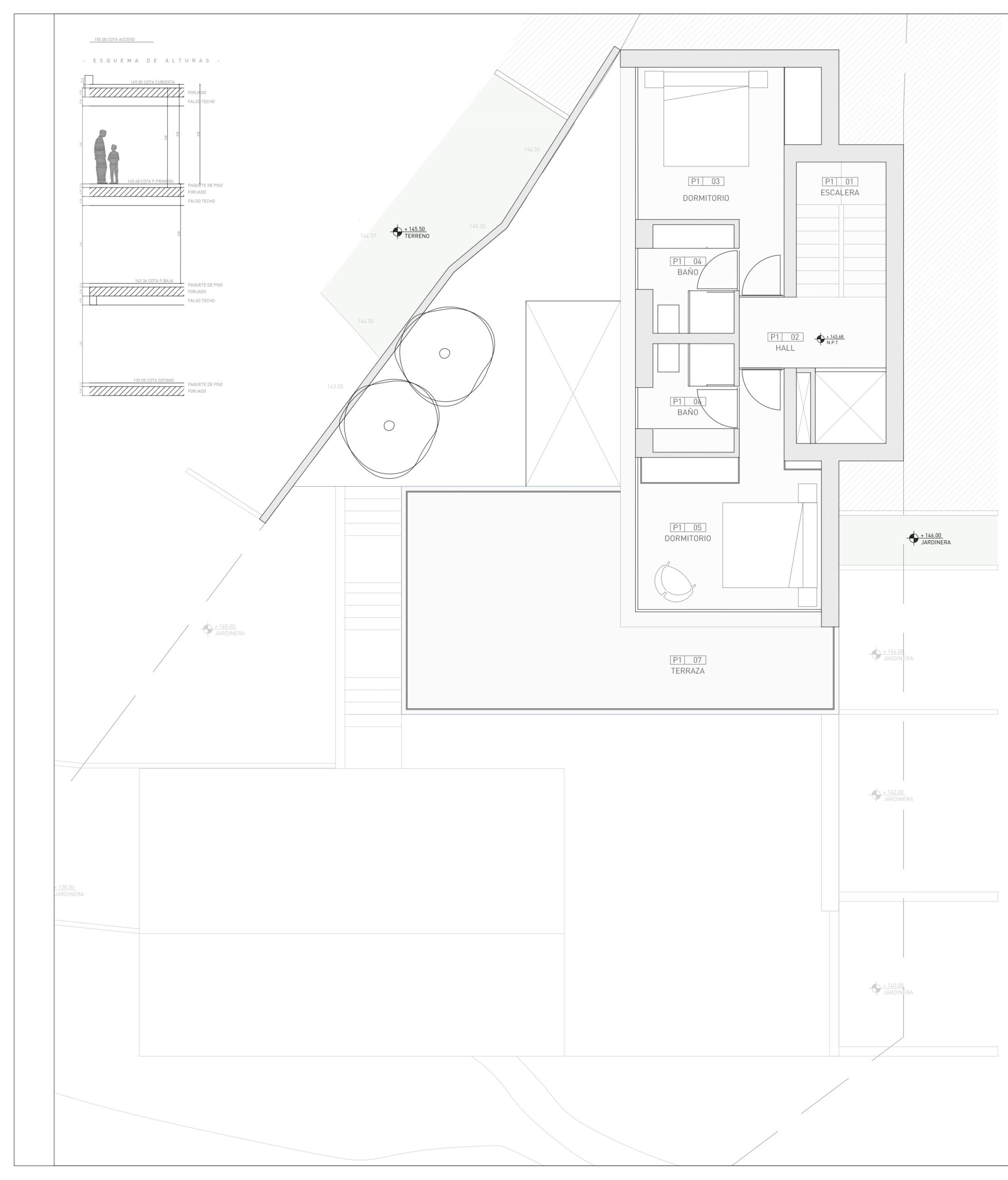
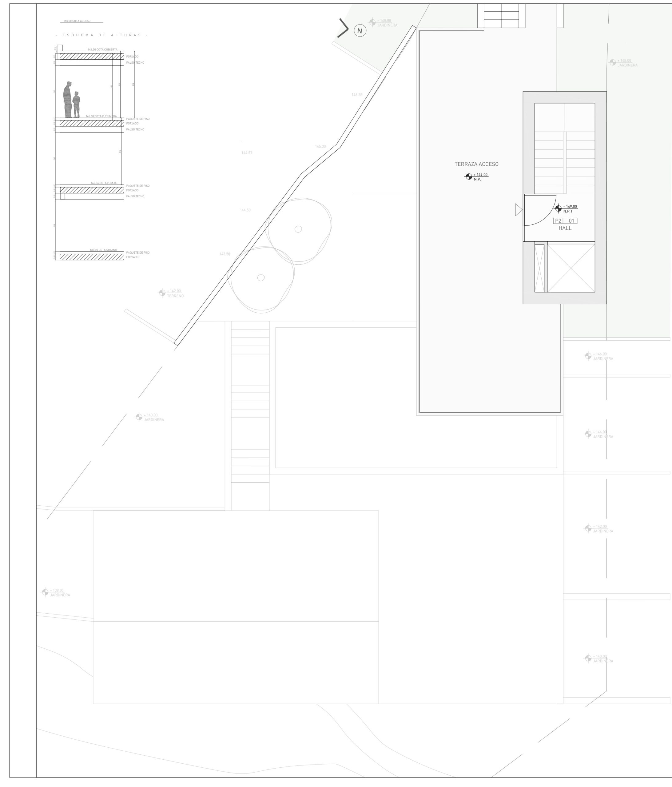
Deze moderne villa is gelegen in Benissa en biedt een adembenemend uitzicht over de kust van aan de Cap D’or in Moraira tot aan de Peñon de Ifach in Calpe. De villa is verdeeld over vier verdiepen die verbonden zijn met een lift. Op straatniveau is parkeerruimte voorzien voor twee wagens. Via een trap bereik je de bovenste verdieping, waar zich een hal en de trap en de lift naar de andere verdiepingen bevindt. Er is de mogelijkheid ook een lift te installeren van de parkeerruimte tot aan de hal om zo een maximaal comfort te creëren. Eén verdieping lager bevinden zich twee dubbele slaapkamers. Elke slaapkamer heeft een en suite badkamer en één slaapkamer heeft een groot terras. Nog een verdieping lager bevinden zich nogmaals twee dubbele slaapkamers, beiden met een en suite badkamer en met toegang tot een gedeeld balkon. Op deze verdieping is ook een overdekt terras, een kleine tuin, een wasruimte en een technische ruimte. De benedenverdieping bestaat uit een zeer ruime woonkamer met een open keuken met een groot kookeiland en een gastentoilet. Buiten is er een zwembad van 3.5 x 10m dat omringd wordt door een groot terras met een barbecue. Aan de westkant van de villa is nog een patio, hierdoor is er op deze verdieping niet enkel natuurlijke lichtinval via het zuidoosten maar ook via het westen. Via de grote ramen kun je bovendien van op alle verdiepen genieten van het prachtige uitzicht. De villa is voorzien van vloerverwarming en airconditioning. De prachtige kust van Benissa ligt op slechts 2 km afstand en biedt meerdere idyllische strandjes perfect voor te zonnen, snorkelen, etc. Bovendien is de villa gelegen op een zeer centrale locatie met betrekking tot de omliggende dorpen en steden. Op slechts 10 minuten bereik je de grote zandstranden van Calpe als ook historische centrum van Benissa. En op een kleine 20 minuten ben je in het toeristische havendorpje Moraira.
Adres
-
Adres: Benissa
-
Plaats: Benissa
-
Provincie: Alicante
-
Postcode: 03720
-
Wijk/gebied: La Fustera
-
Land: Spanje
Details
Updated on september 30, 2025 at 12:43 pm-
Referentienummer HZ4309BEN
-
Prijs €2.200.000
-
Woningoppervlakte 357
-
Grondstuk 1058
-
Slaapkamers 4
-
Badkamers 4
-
Garages 2
-
Bouwjaar 2024
-
Woningtype Villa
-
Objectstatus Nieuwbouw












