4299BEN Luxueuze nieuwbouw villa met fantastisch zeezicht te koop in Benissa
- €3.017.000
Omschrijving
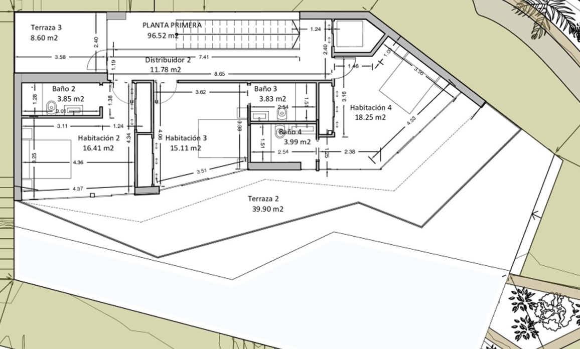
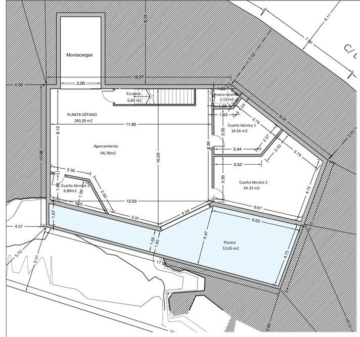
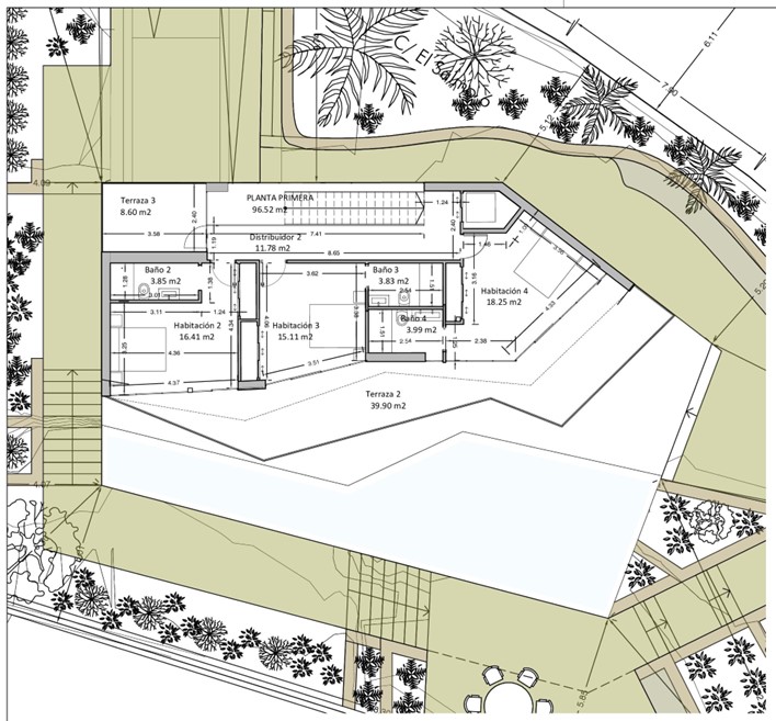
Deze luxueuze villa zal gebouwd worden op een grondstuk gelegen aan de prachtige kust van Benissa. Er is een uitgestrekt uitzicht over de zee, langs de kliffen tot aan de Peñon de Ifach in Calpe. De villa is verdeeld over twee verdiepen en heeft ook nog een kelderverdieping. De benedenverdieping bestaat uit een ruime woon-eetkamer met een open keuken, een dubbele slaapkamer met een en suite badkamer en een gastentoilet. Zowel vanuit de woonkamer als vanuit de slaapkamer is er via de grote schuiframen toegang tot het overdekte terras. De bovenverdieping bestaat uit drie dubbele slaapkamers, elk met een en suite badkamer, een groot terras aan de westkant en een tweede, kleiner terras aan de oostkant. De kelderverdieping bestaat uit een grote garage en drie technische ruimtes. Buiten aan het terras is een groot zwembad waar u van het fantastische uitzicht kunt genieten. De villa is ook voorzien van een lift. De villa zal omringd worden door een minimalistische tuin met weinig onderhoud voorzien van belichting en automatische irrigatie. Een impressionant uitzicht, op een steenworp van meerdere idyllische strandjes, omringd door meerdere luxueuze villa’s en op slechts 10 minuten van zowel het toeristische kustdorpje Moraira als de levendige badstad Calpe, twijfel niet langer en bezoek deze fantastische locatie! Het aangrenzende, lager gelegen grondstuk is ook te koop inclusief een project.
Adres
-
Adres: Benissa
-
Plaats: Benissa
-
Provincie: Alicante
-
Postcode: 03720
-
Land: Spanje
Details
Updated on september 30, 2025 at 12:42 pm-
Referentienummer HZ4299BEN
-
Prijs €3.017.000
-
Woningoppervlakte 383
-
Grondstuk 921
-
Slaapkamers 4
-
Badkamers 4
-
Garages 2
-
Bouwjaar 2024
-
Woningtype Villa
-
Objectstatus Nieuwbouw
