4298BEN Moderne villa met adembenemend uitzicht over de kust van Benissa
- €2.234.900
Omschrijving
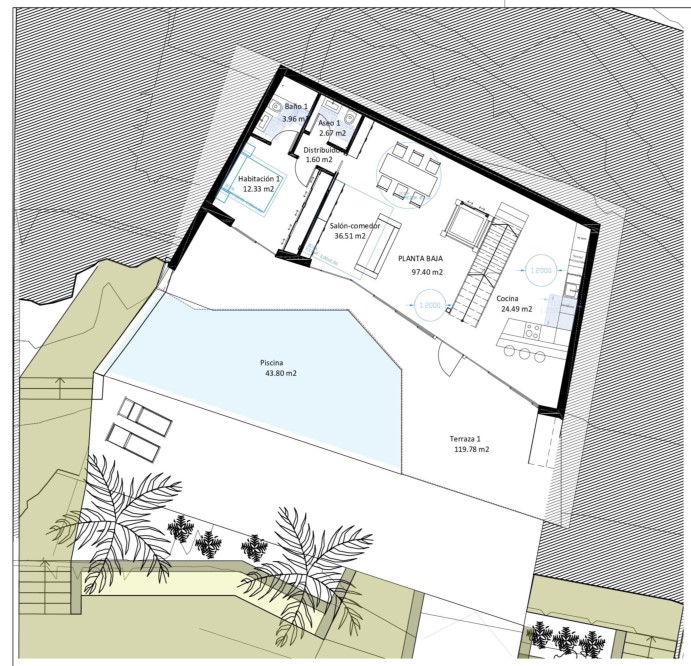
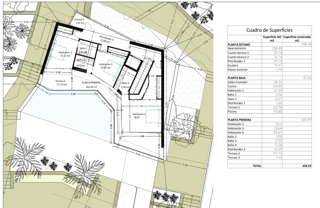
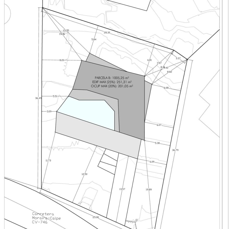
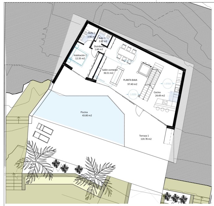
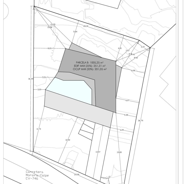
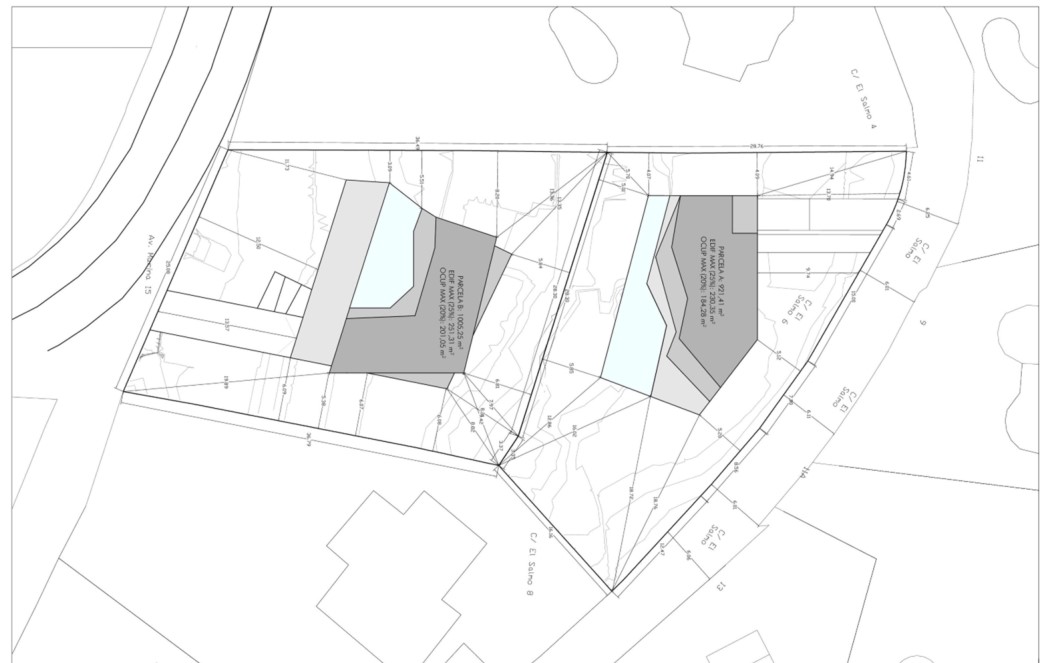
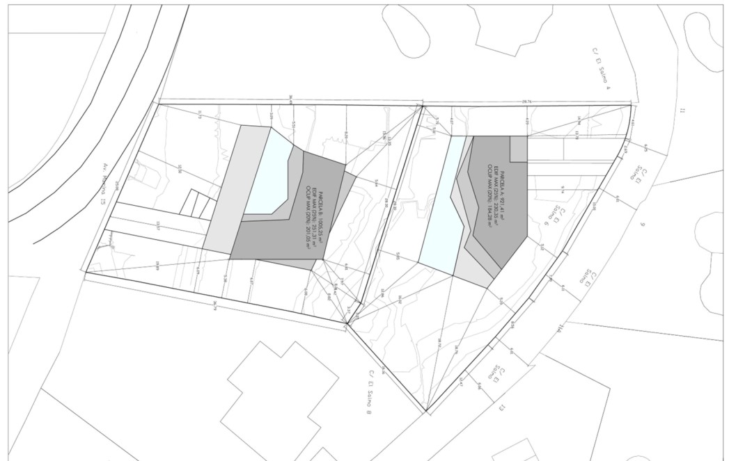
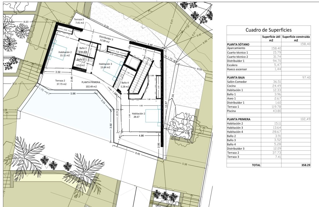
Deze luxueuze villa zal gebouwd worden op een grondstuk gelegen aan de prachtige kust van Benissa. Er is een uitgestrekt uitzicht over de zee, langs de kliffen tot aan de Peñon de Ifach in Calpe. De villa is verdeeld over twee verdiepen en heeft ook nog een kelderverdieping. De benedenverdieping bestaat uit een ruime woon-eetkamer, een open keuken, een dubbele slaapkamer met een en suite badkamer en een gastentoilet. Zowel vanuit de woonkamer als vanuit de slaapkamer is er via grote schuiframen toegang tot het terras aan het zwembad. De bovenverdieping bestaat uit drie dubbele slaapkamers, elk met een en suite badkamer. De kelderverdieping bestaat uit een garage, 2 technische ruimtes en een extra ruimte voor opslag, gym, etc. De villa is ook voorzien van een lift. De villa zal omringd worden door een minimalistische tuin met weinig onderhoud voorzien van belichting en automatische irrigatie. Een impressionant uitzicht, op een steenworp van meerdere idyllische strandjes, omringd door meerdere luxueuze villa’s en op slechts 10 minuten van zowel het toeristische kustdorpje Moraira als de levendige badstad Calpe, twijfel niet langer en bezoek deze fantastische locatie! Het aangrenzende, hoger gelegen grondstuk is ook te koop inclusief een project en biedt een nog panoramischer uitzicht over de kust. Het project beschikt al over een bouwvergunning. Meer informatie op aanvraag.
Adres
-
Adres: Benissa
-
Plaats: Benissa
-
Provincie: Alicante
-
Postcode: 03720
-
Land: Spanje
Details
Updated on september 30, 2025 at 12:42 pm-
Referentienummer HZ4298BEN
-
Prijs €2.234.900
-
Woningoppervlakte 358
-
Grondstuk 1005
-
Slaapkamers 4
-
Badkamers 4
-
Garages 2
-
Bouwjaar 2024
-
Woningtype Villa
-
Objectstatus Nieuwbouw







