3631CAL Prachtige mediterrane nieuwbouwvilla met zeezicht te koop in Calpe
- €2.450.000
Omschrijving
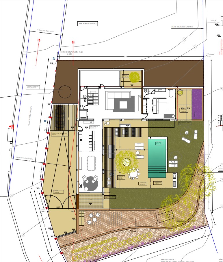
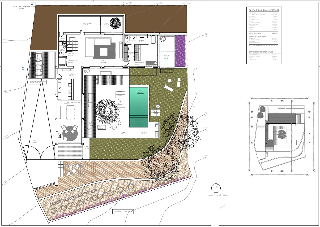
Deze prachtige mediterrane nieuwbouwvilla ligt op een glooiend perceel van 1079 m2 dat samenvalt met een uitstekende zuidoostelijke oriëntatie en een prachtig uitzicht biedt op de zee en de Peñon de Ifach. Het uitzonderlijke van dit perceel is dat het grenst aan rustiek land, dus we hebben een huis op stedelijke grond met het gevoel in een mediterraan bos te wonen met uitzicht op zee. Er is ervoor gekozen om zo weinig mogelijk aarde te verplaatsen en de villa te laten opgaan in het natuurlijk reliëf van het grondstuk. Het huis is ontworpen in een L-vorm waardoor de maximale ruimte binnen het perceel wordt vrijgemaakt. Eén vleugel heeft twee verdiepingen, de andere slechts één. Alle kamers hebben een zuid- of oostoriëntatie en genieten van een buitengewoon uitzicht op de zee en een mediterraan bos. De woning heeft een sterke link met de buitenruimtes, het interieur versmelt met de buitenkant en hierdoor komt de natuur in de woning. De buitenruimtes worden de meeste maanden van het jaar bewoond als verlengstuk van dit huis. In de oostelijke vleugel van de begane grond bevindt zich het hart van het huis, de keuken met uitzicht op de tuin en het zwembad, de eetkamer en een woonkamer met open haard, al deze ruimte is met buiten verbonden met lichte, traditionele mediterrane veranda’s bedekt met riet. De zuidvleugel herbergt op de begane grond een aantrekkelijke en ruime woonkamer die zeer open is naar buiten, maar ook uitkomt op een Engelse patio, wat ons een uitzonderlijke dwarsventilatie en een grote ruimtelijke rijkdom geeft. Deze lichtbron verlicht ook een multifunctionele ruimte, ideaal voor een muziekkamer, sportschool, yogapraktijk, speelkamer… of de droom van de eigenaar. Vanuit de grote woonkamer heeft u toegang tot de hoofdsuite, waardoor u onafhankelijk wordt van de rest van de slaapkamers op de bovenverdieping. Deze slaapkamer heeft een aantrekkelijke indeling, waarbij de kleedkamer en de badkamer cirkelvormig op elkaar aansluiten zonder dat ze door de rustruimte hoeven te gaan, maar het meest aantrekkelijke aspect is zonder twijfel de privéverbinding vanuit deze suite met wederom een overdekt terras met een mediterrane veranda en uitzicht op het dennenbos en de zee. leidt, met twee slaapkamers en drie badkamers, gekoppeld aan een doorlopend balkon met uitzicht op de zee en de Ifach. Rock, ten slotte, een woongedeelte (dat kan worden omgebouwd tot een derde slaapkamer) met toegang tot twee tegenover elkaar gelegen terrassen, wederom loopt de dwarsventilatie door het huis. Meer informatie op aanvraag.
Adres
-
Adres: Calpe
-
Plaats: Calpe
-
Provincie: Alicante
-
Postcode: 03710
-
Wijk/gebied: Garduix
-
Land: Spanje
Details
Updated on september 30, 2025 at 12:45 pm-
Referentienummer HZ3631CAL
-
Prijs €2.450.000
-
Woningoppervlakte 675
-
Grondstuk 1079
-
Slaapkamers 4
-
Badkamers 5
-
Garages 2
-
Woningtype Villa
-
Objectstatus Nieuwbouw
Energieklasse
-
Energieklasse: In aanvraag
- A+
- A
- B
- C
- D
- E
- F
- G
- H







