3615BEN moderne nieuwbouwvilla met zeezicht te koop in Benissa
- €2.200.000
Omschrijving
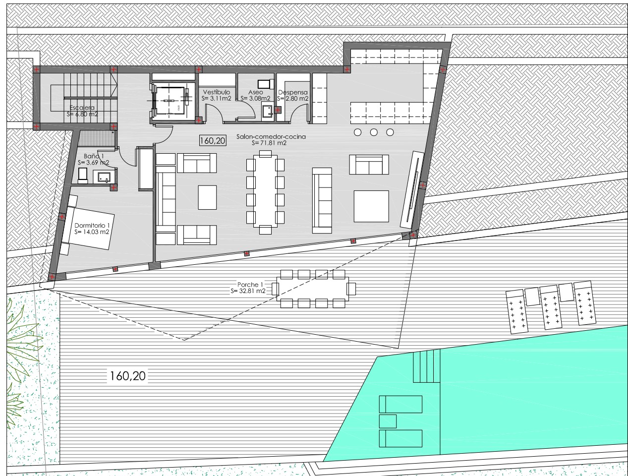
Moderne nieuwbouwvilla met zeezicht te koop in Raco de Galeno voorzien van alle luxe, er zijn 4 verdiepingen die onderling verbonden zijn met een lift en een interne trap. Op het gelijkvloers is er een inkomhall met een vestaire en een gastentoilet, een leefkamer met een volledig uitgeruste open keuken met een bijkeuken, een salon en een tweede zithoek om TV te kijken. Vanuit deze ruimte kan men naar buiten naar het terras van 160m2 waarvan een deel overdekt is. Hier vindt men ook het overloopzwembad met een ondiepe zone om in te relaxen. Verder is er nog een slaapkamer met en suite badkamer. Op de eerste verdieping is er de master bedroom van 40m2 met en suite badkamer en inloopkast, verder zijn er nog 2 slaapkamers met een en suite badkamer. Op de bovenste verdieping kan men de woning betreden, er is een garage voor 2 autos en wat bergruimte, de inkomhall met lift en trap en verder is er nog een groot dakterras. In de kelder is er een SPA met een binnenzwembad, een sauna, gym en douche. Verder is er een thuisbioskoop, een bijkeuken, een toilet en een grote ruimte om te ontspannen. Buiten is er een mooie mediterane tuin met veel natuurstenen muren.
Adres
-
Adres: Benissa
-
Plaats: Benissa
-
Provincie: Alicante
-
Postcode: 03720
-
Wijk/gebied: Raco de Galeno
-
Land: Spanje
Details
Updated on september 30, 2025 at 12:42 pm-
Referentienummer HZ3615BEN
-
Prijs €2.200.000
-
Woningoppervlakte 560
-
Grondstuk 1500
-
Slaapkamers 4
-
Badkamers 4
-
Garages 2
-
Bouwjaar 2024
-
Woningtype Villa
-
Objectstatus Nieuwbouw
Energieklasse
-
Energieklasse: A
- A+
- | Energieklasse AA
- B
- C
- D
- E
- F
- G
- H












