3581BELL Moderne villa onder constructie te koop in Benitachell
- €625.000
Omschrijving
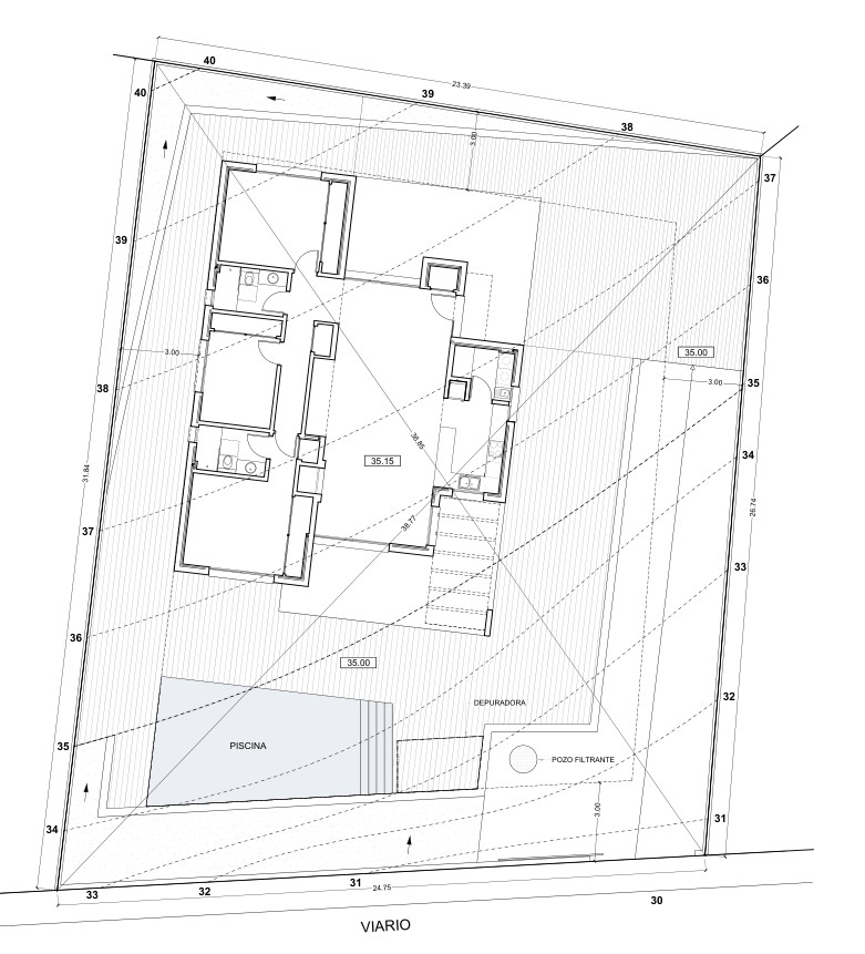
Deze moderne villa is gelegen in de rustige urbanisatie Raco de Nadal en biedt prachtig uitzicht over de vallei van Benitachell tot en met Cumbre del Sol. De volledige woning bevindt zich op één verdieping wat voor uiterst comfort zorgt. Er is een ruime woon-eetkamer met een volledig uitgeruste open keuken, een bijkeuken en drie dubbele slaapkamers. Hiervan heeft één slaapkamer een en suite badkamer, de andere twee slaapkamers delen een badkamer. Er is ook een pergola, een groot terras aan het zwembad en parkeerruimte. De woning is gelegen aan de voet van het natuurgebied Tossal Gros waar meerdere wandel- en mountainbike routes lopen. Zowel het centrum van Jávea als dat van Moraira zijn op 15 minuten te bereiken, ook meerdere prachtige stranden zowel in Jávea als in Moraira zijn op 15 minuten te bereiken. Het centrum van Benitachell is op iets meer dan 5 minuten te bereiken. De villa is momenteel onder constructie. Meer informatie op aanvraag.
Adres
-
Adres: Benitachell
-
Plaats: Benitachell
-
Provincie: Alicante
-
Postcode: 03726
-
Wijk/gebied: Urbanización Raco de Nadal
-
Land: Spanje
Details
Updated on september 30, 2025 at 12:41 pm-
Referentienummer HZ3581BELL
-
Prijs €625.000
-
Woningoppervlakte 153
-
Grondstuk 707
-
Slaapkamers 3
-
Badkamers 2
-
Garages 2
-
Bouwjaar 2023
-
Woningtype Villa
-
Objectstatus Nieuwbouw





