3578PED Moderne gelijkvloersnieuwbouwvilla te koop in Pedreguer
- €625.000
Omschrijving
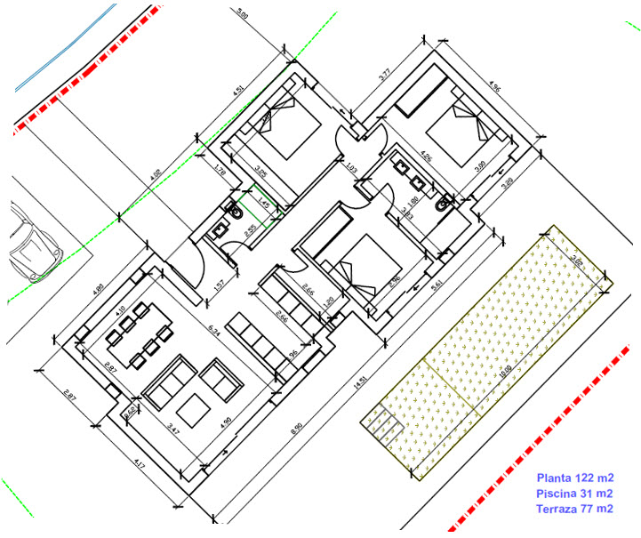
Moderne gelijkvloersnieuwbouwvilla te koop in Pedreguer, het project heeft al een bouwlicentie en kan opgeleverd worden in 12 maanden. De villa biedt een mooi panoramisch uitzicht op de prachtige omgeving, ze is georienteerd op het zuiden en ligt kort bij het centrum van Pedreguer. Er is een inkomhal, een woon eetkamer met een open keuken, een bijkeuken,2 tweepersoonsslaapkamers die een badkamer delen en een master bedroom met een en suite badkamer.De totale oppervlakte van de villa is 122m2. Buiten is er een terras van 77m2 met een zwembad van 10 x 3m.
Adres
-
Adres: Pedreguer
-
Plaats: Pedreguer
-
Provincie: Alicante
-
Postcode: 03750
-
Wijk/gebied: Monte Solana
-
Land: Spanje
Details
Updated on september 30, 2025 at 12:40 pm-
Referentienummer HZ3578PED
-
Prijs €625.000
-
Woningoppervlakte 230
-
Grondstuk 719
-
Slaapkamers 3
-
Badkamers 2
-
Garage 1
-
Bouwjaar 2025
-
Woningtype Villa
-
Objectstatus Nieuwbouw



