3483MOR Nieuwbouw villa te koop in Moraira
- €1.795.000
Omschrijving
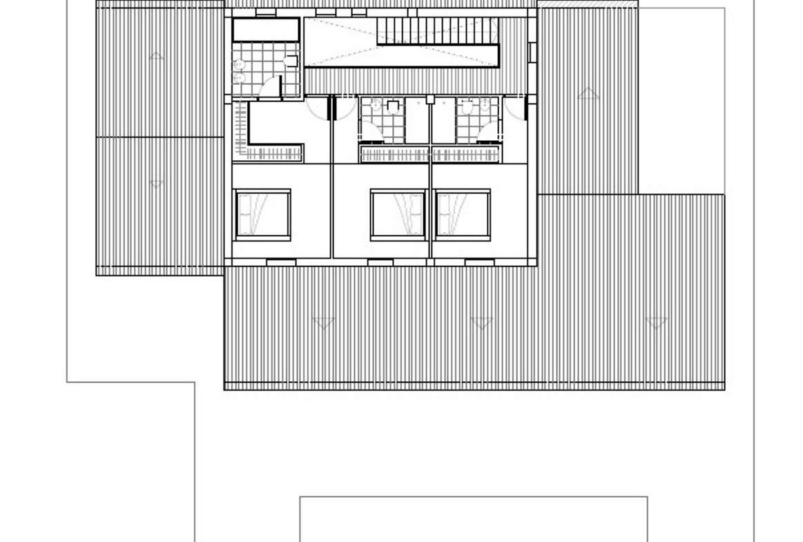
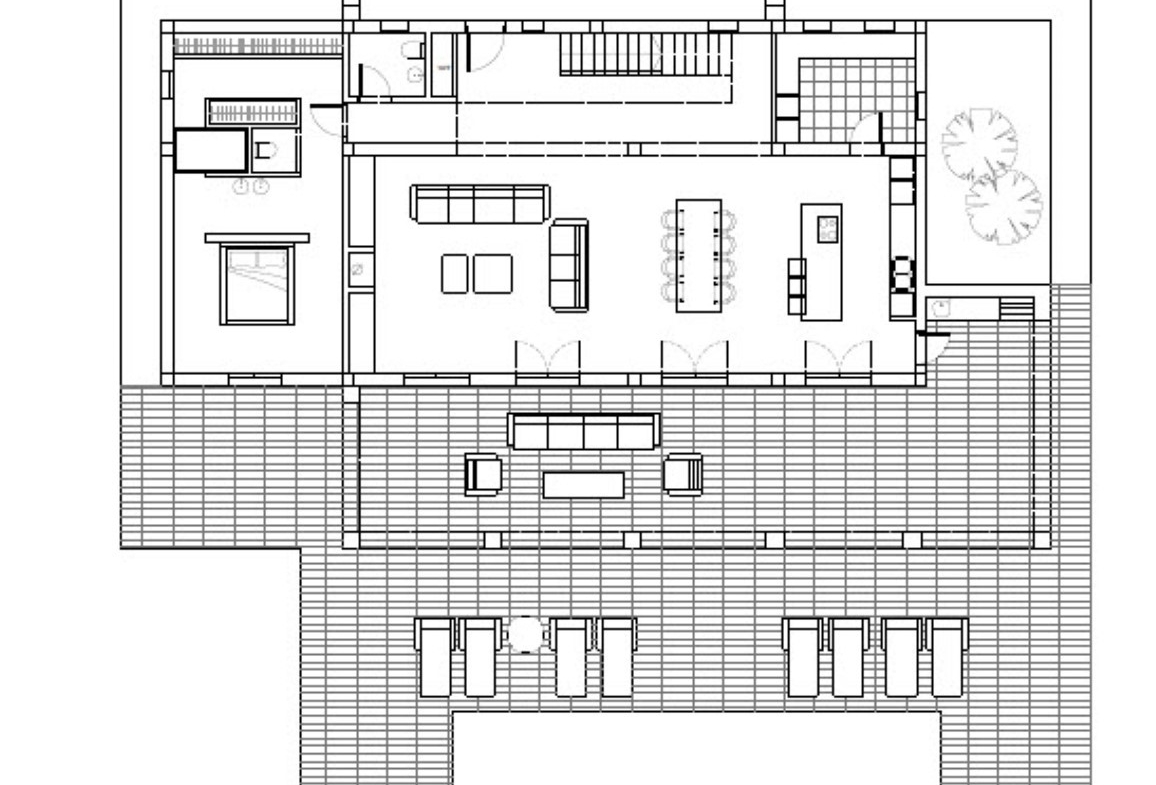
Nieuwbouw villa te koop in Moraira, deze villa combineert luxe met een traditionele finca bouwstijl en wordt gebouwd op een een ruim grondstuk. Op het gelijkvloers is er een ruime inkomhal met een gastentoilet, een woonkamer met een open keuken met bijkeuken en een masterbedroom met en-suite badkamer en inloopkast. De woonkamer en keuken geven uit op het zeer grote overdekte terras met buitenkeuken. Op de eerste verdieping zijn er 2 tweepersoonsslaapkamers met en-suite badkamer en is er nog een derde grotere tweepersoonsslaapkamer met en-suite badkamer en inloopkast. In de kelder is er een grote multifunctionele ruimte ingericht als bioskoop en is er een bodega. In de omheinde tuin is er een zwembad van 48m2 dat omgeven is door een groot terras.
Adres
-
Adres: Moraira
-
Plaats: Moraira
-
Provincie: Alicante
-
Postcode: 03724
-
Wijk/gebied: Benimeit
-
Land: Spanje
Details
Updated on september 30, 2025 at 12:38 pm-
Referentienummer HZ3483MOR
-
Prijs €1.795.000
-
Woningoppervlakte 653
-
Grondstuk 13000
-
Slaapkamers 4
-
Badkamers 4
-
Garages 6
-
Bouwjaar 2022
-
Woningtype Villa
-
Objectstatus Nieuwbouw




